- Tylko online
Masz pytania? Chciałbyś negocjować cenę
Zadzwoń! 577 575 011
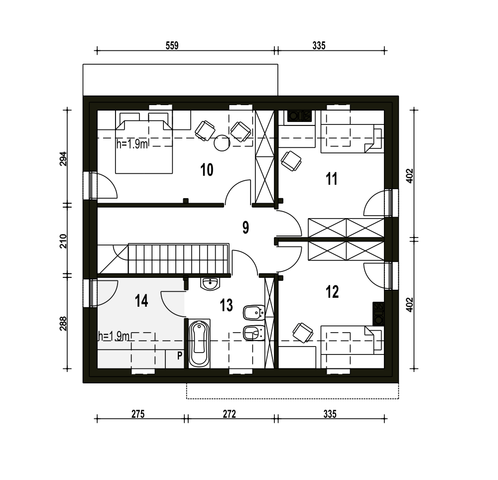
Dom Sosnówka zaprojektowano na rzucie prostokąta gdzie kalenica jest równoległa względem elewacji frontowej. Doskonale wpisze się na nieduże działki o średniej wielkości i ze względu na typowy kształt będzie się dobrze komponował w każdym otoczeniu. Projekt zawiera w parterze; salon z kuchnią i kominkiem z dostępem do części tarasowej, łazienkę, pokój gościnny oraz w części komunikacyjnej wiatrołap i hol. Mamy tu także kotłownię,za nią pralnię . Poddasze na które prowadzą jednobiegowe schody to 3 sypialnie z dostępem do dużego tarasu oraz łazienka. Sosnówka ma wizerunek minimalistyczny ale jednocześnie bardzo ciepły i zachęcający.
