- Tylko online
Masz pytania? Chciałbyś negocjować cenę
Zadzwoń! 577 575 011
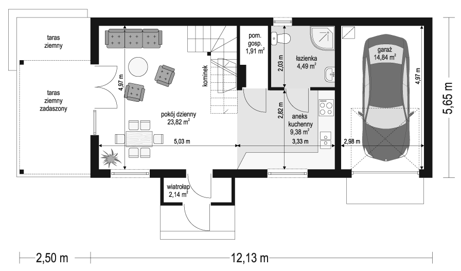
Wariant poszerzony , z garażem , gankiem i zadaszonym tarasem.
