- Tylko online
Masz pytania? Chciałbyś negocjować cenę
Zadzwoń! 577 575 011
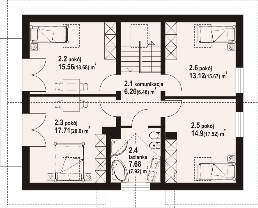
Dom z poddaszem użytkowym. Na parterze przestronny salon tworzy wspólną przestrzeń z aneksem kuchennym . W salonie kominek z możliwością rozprowadzenia ciepła. Na parterze także pokój oraz wydzielona kotłownia. Na poddaszu cztery sypialnie i łazienka.
