- Tylko online
Masz pytania? Chciałbyś negocjować cenę
Zadzwoń! 577 575 011
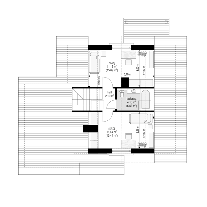
Projekt domu Pchełka z Garażem jest wariantową wersją projekt domu Pchełka, tym razem z dobudowanym garażem. Dom przeznaczony jest dla 4- 5-osób, może być wykorzystany jako jednorodzinny całoroczny, lub jako letniskowy. Prosta bryła budynku, przekryta dwuspadowym dachem urozmaicona została daszkami z dużymi okapami - szczególnie fikuśnym dachem nad wejściem do domu. Wygodny garaż został dobudowany do jednego z boków i przekryty przedłużonym dachem domu. Domek jest bardzo zgrabny, ma dobrze dobrane proporcje i skalę. Ze względu na prosty układ konstrukcji budowa domu powinna być łatwa i niedroga. Wnętrze domu to, na parterze: salon z częścią jadalną połączony z kuchnią, pomieszczenie gospodarcze i garaż, łazienka i pokój - sypialnia rodziców. Na poddaszu zaplanowano dwie sypialnie dzieci i łazienkę. Dom Pchełka z garażem został zaprojektowany tak, aby możliwe było wykończenie poddasza w drugim etapie. Zapraszamy!
