- Tylko online
Masz pytania? Chciałbyś negocjować cenę
Zadzwoń! 577 575 011
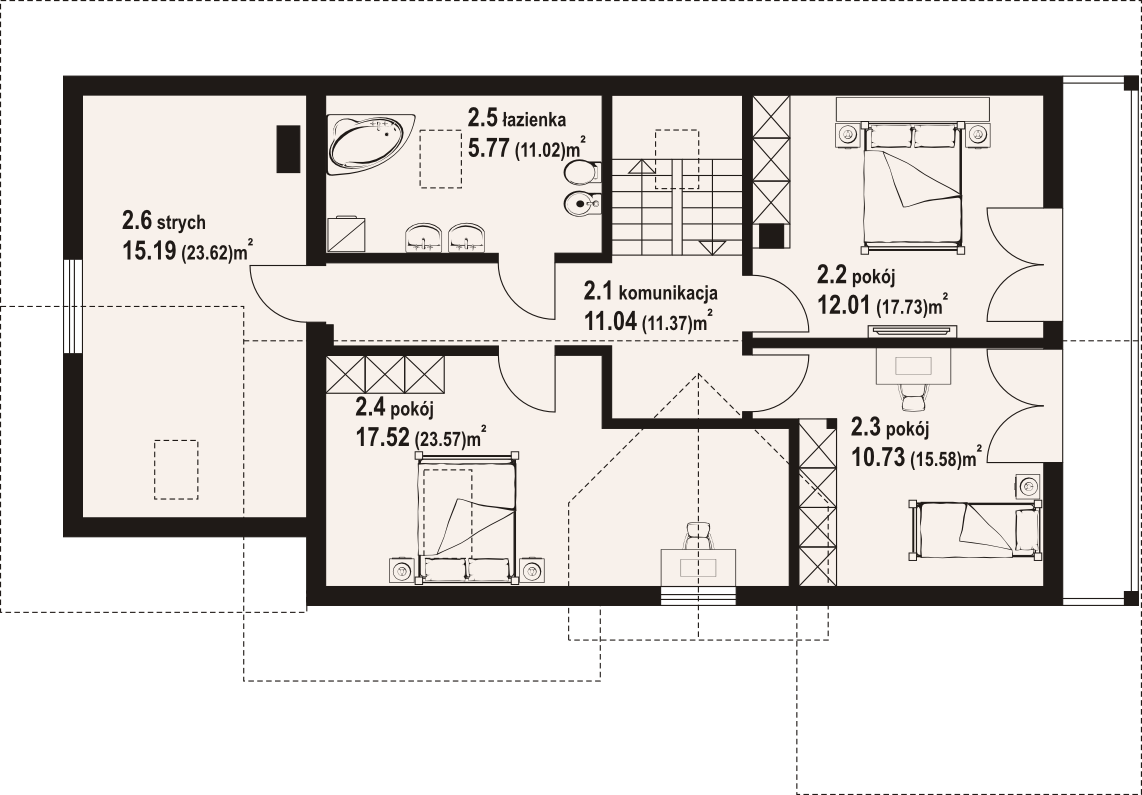
Dom w konstrukcji szkieletu drewnianego. Duży salon z aneksem kuchennym, kominkiem, wyjściami na dwa zadaszone tarasy i schodami na poddasze. Pokój, łazienka, wiatrołap, komunikacja, spiżarka, garaż, kotłownia. Na poddaszu trzy pokoje, łazienka, komunikacja, strych i balkon. Zwarta bryła budynki i dach dwuspadowy sprzyjają szybkiej i taniej budowie i niskim kosztom eksploatacji.
