Informujemy, iż nasz sklep internetowy wykorzystuje technologię plików cookies a jednocześnie nie zbiera w sposób automatyczny żadnych informacji, z wyjątkiem informacji zawartych w tych plikach (tzw. „ciasteczkach”).

A-113

  • Tylko online

Dane techniczne

powierzchnia
99.8 m²
wysokość
6.41 m
kąt dachu
40 °
szerokość działki
23 m
Powierzchnia zabudowy
119.9
kondygnacje
piętrowe
konstrukcja
z bali
zabudowa
domy wolnostojące
piwnica
z piwnicą
kubatura
688 m³
dostępne odbicie lustrzane
Nie
Pow. użytkowa
99.8 m²
długość działki
24 m

Opis projektu

Rzuty

rzut piwnicy
1 kotłownia 0.00
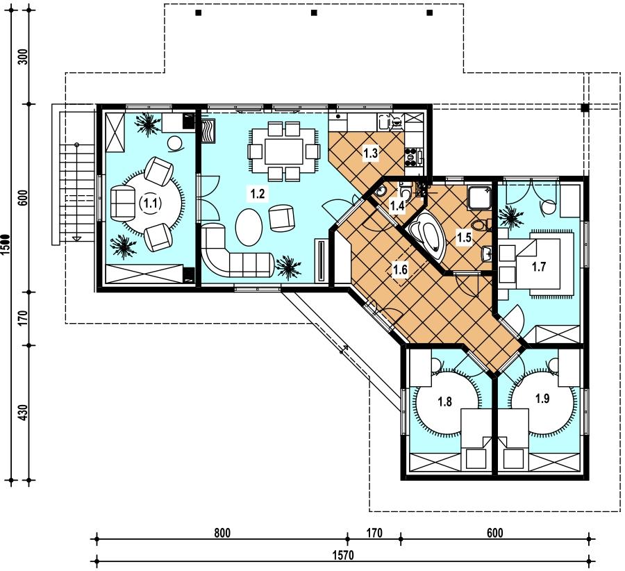
rzut parteru
1 gabinet 15.30 pokój dzienny 23.40 aneks kuchenny 6.40 toaleta 1.40 łazienka 6.20 hall 14.40 sypialnia 12.90 sypialnia 9.90 sypialnia 9.90

O autorze projektu A-113

4 099 zł

Tylko u nas możesz negocjować cenę!
Skorzystaj z tej możliwości.

Lustrzane odbicie: niedostępne.

Masz dodatkowe pytania?
Zadzwoń lub zamów rozmowę.

Zamów rozmowę

Pomożemy Ci dopasować do twoich potrzeb mymarzony projekt, wpisz swój numer telefonu nasz konsultant oddzwoni.

Negocjuj cenę projektu A-113

Zapytaj pytanie o projekt A-113

Oceny i komentarze

Napisz swoją opinię