Informujemy, iż nasz sklep internetowy wykorzystuje technologię plików cookies a jednocześnie nie zbiera w sposób automatyczny żadnych informacji, z wyjątkiem informacji zawartych w tych plikach (tzw. „ciasteczkach”).

L-34

  • Tylko online

Dane techniczne

powierzchnia
105.6 m²
kąt dachu
40 °
szerokość działki
16 m
Powierzchnia zabudowy
97
kondygnacje
piętrowe
garaż
bez garażu
konstrukcja
z bali
zabudowa
domy wolnostojące
piwnica
bez piwnicy
kubatura
495.9 m³
dostępne odbicie lustrzane
Nie
Pow. użytkowa
105.6 m²
długość działki
22.5 m

Opis projektu

Rzuty

rzut parteru
1 wiatrołap 2.90 hall 7.50 pokój dzienny 26.30 wc 1.00 sypialnia 8.10 kuchnia z jadalnią 13.20 kotłownia 4.10 garaż 0.00
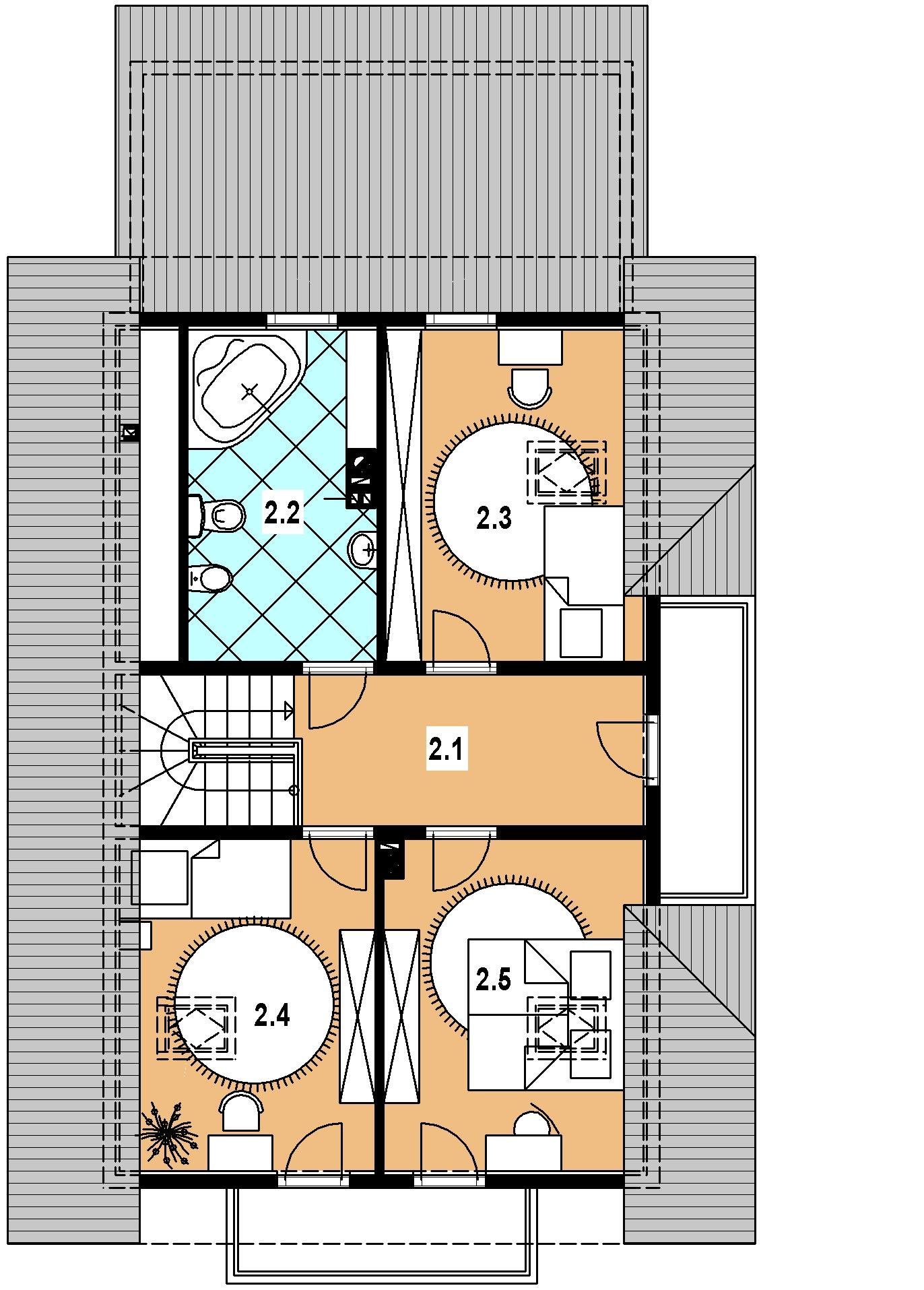
rzut poddasza
1 hall 9.00 łazienka 7.90 sypialnia 8.60 sypialnia 8.60 sypialnia 8.40

O autorze projektu L-34

4 099 zł

Tylko u nas możesz negocjować cenę!
Skorzystaj z tej możliwości.

Lustrzane odbicie: niedostępne.

Masz dodatkowe pytania?
Zadzwoń lub zamów rozmowę.

Zamów rozmowę

Pomożemy Ci dopasować do twoich potrzeb mymarzony projekt, wpisz swój numer telefonu nasz konsultant oddzwoni.

Negocjuj cenę projektu L-34

Zapytaj pytanie o projekt L-34

Oceny i komentarze

Napisz swoją opinię