- Tylko online
Masz pytania? Chciałbyś negocjować cenę
Zadzwoń! 577 575 011
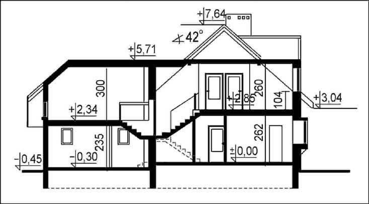
Budynek jednorodzinny, parterowy z poddaszem mieszkalnym, niepodpiwniczonyŚciany zewnętrzne: gr. 44 cm z bloczków ceramicznych POROTHERM; strop: POROTHERM; schody: żelbetowe; dach: dwuspadowy z naczółkami o nachyleniu 42 stopni, więźba krokwiowo-jętkowa, krycie dachówką

Od razu zauważyłam drewniany balkon, bardzo oryginalny! Dobry dodatek do prostego projektu. Na pewno przejrzę inne projekty na archido ale już jeden trafia na moją listę.