- Tylko online
Masz pytania? Chciałbyś negocjować cenę
Zadzwoń! 577 575 011
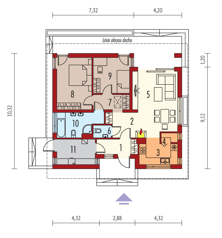
Ściany zewnętrzne trójwarstwowe wykonano z energooszczędnych pustaków ceramicznych. Charakterystyka: Dom parterowy, niepodpiwniczony Przeznaczenie: Dom dla 2-3-osobowej rodzinyTechnologia i konstrukcja: Ściany zewnętrzne: murowane, trójwarstwowe, pustaki ceramiczne 24 cm, ocieplenie 10 cm, warstwa licowa z cegły klinkierowej 11,5 cm firmy Röben Ściany wewnętrzne: murowane, pustaki ceramiczne 24 cm, ścianki działowe pustaki ceramiczne 11,5 cm Strop: strop gęstożebrowy Teriva Dach: konstrukcja drewniana, ocieplenie wełna mineralna 30 cm, dachówka ceramiczna Piemont Titan firmy Röben, więźba dachowa dostępna również w systemie prefabrykacji drewnianejRozwiązania instalacyjne: Ogrzewanie: kocioł gazowy, rozprowadzenie ciepła: grzejniki Wentylacja: grawitacyjnaOZE: kolektory słoneczneWykończenie: Elewacja: cegły licowe klinkierowe firmy Röben 11,5 cm, typ Malmo perłowobiała, elementy nadprożowe i parapety ceglane firmy Röben Stolarka: drewniana, PCV lub aluminiowa, drzwi wejściowe firmy HörmannWersje - zapytaj o dostępność:- Rafael - podobny układ funkcji, 2 sypialnie, mniejsza powierzchnia użytkowa, ściany zewnętrzne dwuwarstwowe, bez garażu - Rafael G1 - podobny układ funkcji, 2 sypialnie, mniejsza powierzchnia użytkowa, dach o kącie nachylenia 25°, ściany zewnętrzne dwuwarstwowe, z garażem jednostanowiskowym- Rafael G1 (bliźniak) – wariant w zabudowie bliźniaczej - Rafael II – podobny układ funkcji, jadalnia z wykuszem, ściany zewnętrzne dwuwarstwowe, bez garażu i z garażem jednostanowiskowym - Rafael III – podobny układ funkcji, jadalnia bez wykusza z wersji II, ściany zewnętrzne dwuwarstwowe, bez garażu i z garażem jednostanowiskowym - Rafael IV – dom z rozwiązaniami firmy Rigips i wiązarami prefabrykowanymi, podobny układ funkcji, standard ociepleń ENERGO, ściany zewnętrzne dwuwarstwowe, bez garażu i z garażem jednostanowiskowym - Rafael V G1 – wariant z garażem jednostanowiskowym - Rafael VI ECONOMIC – podobny układ funkcji, 2 sypialnie, mniejsza powierzchnia użytkowa, standard ociepleń ENERGO, bez garażu i z garażem jednostanowiskowym- Rafael G1 (30 st), Rafael II (30 st), Rafael III (30 st), Rafael III G1 (30 st), Rafael IV G1 (30 st), Rafael VI ECONOMIC (30 st) – warianty z dachami o kącie nachylenia 30° - każda wersja z inną propozycją wykończenia elewacji - odbicie lustrzane do każdej wersjiIstnieje techniczna możliwość: - podpiwniczenia - wykonania budynku w technologii szkieletowej - zmiany kąta nachylenia dachu do 30° oraz adaptacji poddasza na strychAtuty projektu okiem architekta: - Doskonałe parametry cieplne dzięki zastosowaniu ścian trójwarstwowych w energooszczędnej technologii - Kompaktowe i ergonomiczne wnętrze z czytelnym podziałem na strefę dzienna i nocną - Dwie sypialnie z wyjściem na taras - Funkcjonalne szafy wnękowe - Kuchnia z praktyczną spiżarnią - Duże przeszklenia w salonie oraz jadalni z widokiem na ogród - Zacieniony taras - Nieszablonowa elewacja - Zadaszona strefa wejściowa – ochrona przed deszczem i śniegiem - Prosta forma i dwuspadowy dach – ekonomiczna realizacja - Duże pomieszczenie kotłowni pozwala na zastosowanie dowolnego źródła ogrzewania
