- Tylko online
Masz pytania? Chciałbyś negocjować cenę
Zadzwoń! 577 575 011
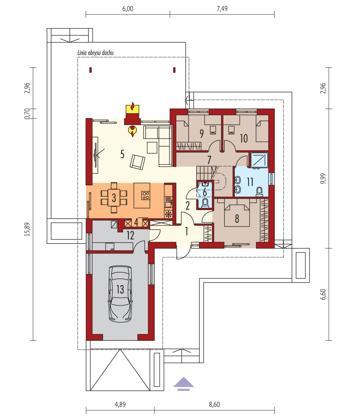
Charakterystyka: Dom parterowy z poddaszem do późniejszej adaptacji na cele mieszkalne, niepodpiwniczony, z garażem dwustanowiskowym Przeznaczenie: Dom dla 3-4-osobowej rodziny Technologia i konstrukcja: Ściany zewnętrzne: murowane, dwuwarstwowe, beton komórkowy Solbet 24 cm, ocieplenie styropian Termoorganika 20 cm Ściany wewnętrzne: murowane, nośne i działowe beton komórkowy Solbet 24 cm i 12 cm Strop: gęstożebrowy Teriva, ocieplenie wełna mineralna Isover Super-Mata 30 cm Dach: konstrukcja drewniana, dachówka ceramiczna płaska Bergamo firmy Röben, więźba dachowa dostępna również w systemie prefabrykacji drewnianej Rozwiązania instalacyjne: Ogrzewanie: kocioł gazowy kondensacyjny, rozprowadzenie ciepła: grzejniki Wentylacja: grawitacyjna OZE: kolektory słoneczneWykończenie: Elewacje: tynk cienkowarstwowy mineralny w kolorze TO-PA001 z palety firmy Termo Organika, okładzina kamienna Stolarka: drewniana, PVC lub aluminiowa, rolety zewnętrzne QuadBox firmy BeClever, drzwi wejściowe i brama garażowa firmy HörmannOtoczenie: system tarasowy ProDeck - deska kompozytowa Terra w kolorze kasztanWersje domów w serii Simon - zapytaj o dostępność: - Simon – dom z poddaszem do adaptacji, 3 sypialnie, dach o kącie nachylenia 30° - Simon II – dom z poddaszem użytkowym, 3 sypialnie + gabinet, dach o kącie nachylenia 35° - Simon III – dom parterowy, 4 sypialnie, dach o kącie nachylenia 25° - Simon IV – dom parterowy, 3 sypialnie, dach o kącie nachylenia 25° - Simon (mały) – dom z poddaszem do adaptacji, mniejsza powierzchnia użytkowa, 3 sypialnie, dach o kącie nachylenia 35° - Simon III (wiązary) – system suchej zabudowy ścian działowych Rigips, wiązary prefabrykowane, rozwiązania materiałowo-technologiczne Grupy Saint-Gobain, układ funkcji jak w domu Simon III G2, dom parterowy, 4 sypialnie, dach o kącie nachylenia 25° - Simon IV (bliźniak) – dom parterowy w zabudowie bliźniaczej, 3 sypialnie, dach o kącie nachylenia 25° - Simon 01 (dwulokalowy) – dom z dwoma mieszkaniami, z poddaszem do adaptacji, dach o kącie nachylenia 30° – wszystkie wersje o podobnym układzie funkcji oraz z inną propozycją wykończenia elewacji – wszystkie wersje z trzema wariantami garaży: bez garażu, z garażem jedno- i dwustanowiskowym (wyjątek: dom dwulokalowy – tylko w wariancie bez garażu) – odbicie lustrzane do każdej wersjiWszystkie wersje domów możliwe w dwóch standardach/wariantach instalacyjnych: - ENERGO: kocioł gazowy kondensacyjny, grzejniki, wentylacja grawitacyjna, OZE: kolektory słoneczne - ENERGO PLUS: pompa ciepła, ogrzewanie podłogowe, wentylacja mechaniczna, OZE: kolektory słoneczne lub panele fotowoltaiczneIstnieją techniczne możliwości wykonania zmian: - podpiwniczenia budynku- zmiany kąta nachylenia dachu do 30° i adaptacji poddasza na cele mieszkalne - wykonania budynku w technologii szkieletowej - dokonania zmian funkcjonalnych wg indywidualnych wymagań
