- Tylko online
Masz pytania? Chciałbyś negocjować cenę
Zadzwoń! 577 575 011
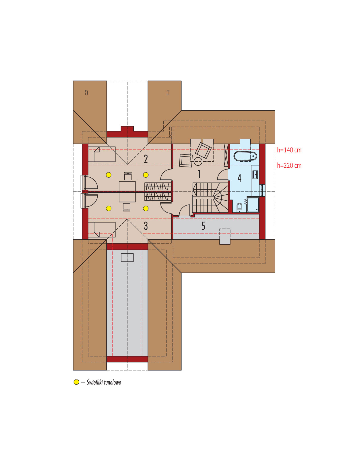
Charakterystyka: Dom parterowy z poddaszem użytkowym, niepodpiwniczony, z garażem dwustanowiskowym Przeznaczenie: Dom dla 3-5-osobowej rodziny Technologia i konstrukcja: Ściany zewnętrzne: murowane, dwuwarstwowe, beton komórkowy Solbet 24 cm, ocieplenie styropian Termo Organika 20 cm Strop: międzypiętrowy gęstożebrowy Teriva Dach: konstrukcja drewniana, ocieplenie wełna mineralna 30 cm, dachówka ceramiczna płaska Bergamo firmy Röben Inne: schody wewnętrzne drewniane Rozwiązania instalacyjne: Ogrzewanie: kocioł gazowy kondensacyjny, rozprowadzenie ciepła: grzejniki Wentylacja: grawitacyjna OZE: kolektory słoneczne Wykończenie: Elewacje: tynk cienkowarstwowy mineralny w kolorze TO-PA001 z palety firmy Termo Organika, okładzina z płyty HPL z naturalną okleiną drewnianą firmy Prodema, okładzina komina: płytki klinkierowe Stolarka: drewniana, PVC lub aluminiowa, rolety zewnętrzne w systemie CleverBox firmy BeClever, drzwi wejściowe i brama garażowa firmy Hörmann Otoczenie: system tarasowy ProDeck - deska kompozytowa Terra w kolorze złoty dąb Okna połaciowe: rozwiązania technologiczne i wyłaz dachowy firmy VELUX, świetlik tunelowy VELUX. Pobierz ekspercki poradnik VELUX i dowiedz się jak wybrać okna dachoweWersje domów w serii Simon - zapytaj o dostępność: - Simon – dom z poddaszem do adaptacji, 3 sypialnie, dach o kącie nachylenia 30° - Simon II – dom z poddaszem użytkowym, 3 sypialnie + gabinet, dach o kącie nachylenia 35° - Simon III – dom parterowy, 4 sypialnie, dach o kącie nachylenia 25° - Simon IV – dom parterowy, 3 sypialnie, dach o kącie nachylenia 25° - Simon (mały) – dom z poddaszem do adaptacji, mniejsza powierzchnia użytkowa, 3 sypialnie, dach o kącie nachylenia 35° - Simon III (wiązary) – system suchej zabudowy ścian działowych Rigips, wiązary prefabrykowane, rozwiązania materiałowo-technologiczne Grupy Saint-Gobain, układ funkcji jak w domu Simon III G2, dom parterowy, 4 sypialnie, dach o kącie nachylenia 25° - Simon IV (bliźniak) – dom parterowy w zabudowie bliźniaczej, 3 sypialnie, dach o kącie nachylenia 25° - Simon 01 (dwulokalowy) – dom z dwoma mieszkaniami, z poddaszem do adaptacji, dach o kącie nachylenia 30° – wszystkie wersje o podobnym układzie funkcji oraz z inną propozycją wykończenia elewacji – wszystkie wersje z trzema wariantami garaży: bez garażu, z garażem jedno- i dwustanowiskowym (wyjątek: dom dwulokalowy – tylko w wariancie bez garażu) – odbicie lustrzane do każdej wersjiWszystkie wersje domów możliwe w dwóch standardach/wariantach instalacyjnych: - ENERGO: kocioł gazowy kondensacyjny, grzejniki, wentylacja grawitacyjna, OZE: kolektory słoneczne - ENERGO PLUS: pompa ciepła, ogrzewanie podłogowe, wentylacja mechaniczna, OZE: kolektory słoneczne lub panele fotowoltaiczne Istnieją techniczne możliwości wykonania zmian: - podpiwniczenia budynku - zmiany kąta nachylenia dachu do 30° i zmiany funkcji poddasza na nieużytkowe - wykonania budynku w technologii szkieletowej - dokonania zmian funkcjonalnych wg indywidualnych wymagań
