- Tylko online
Masz pytania? Chciałbyś negocjować cenę
Zadzwoń! 577 575 011
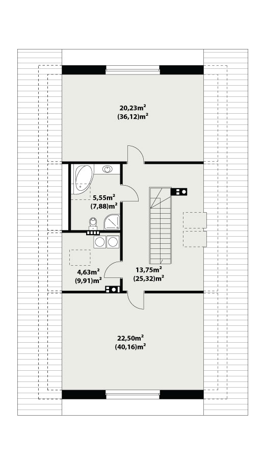
Parterowy dom jednorodzinny, z poddaszem użytkowym zaprojektowany na wąską działkę z wejściem od południa. W prostej bryle przykrytej dwuspadowym dachem zawiera się fukncjonalne i wygodne wnętrze. Od strony wejścia zaprojektowano dużą przestrzeń dzienną z otwartą kuchnią, jadalnią i salonem z przeszklonym wyjściem na taras. Dom w części parterowej spełnia program użytkowy dla 4-osobowej rodziny. Poddasze posiada 2 dodatkowe pokoje do dowolnej aranżacji. Mogą to być dodatkowe sypialnie, pracownia czy pokój hobby. Można też zostawić je jako strych nieużytkowy i alternatywa na dodatkowe pokoje w przyszłości. Sporo miejsca przewidziano też na szafy i schowki. Kotłownia umożliwia zastosowanie kotła na dowolny rodzaj paliwa. Jest to prosty dom, tani w budowie i późniejszej eksploatacji.
