Informujemy, iż nasz sklep internetowy wykorzystuje technologię plików cookies a jednocześnie nie zbiera w sposób automatyczny żadnych informacji, z wyjątkiem informacji zawartych w tych plikach (tzw. „ciasteczkach”).

Oceanic wariant B

  • Tylko online

Dane techniczne

powierzchnia
257.57 m²
wysokość
9.28 m
kąt dachu
22 °
szerokość działki
23.7 m
Liczba pokoi
7
Powierzchnia zabudowy
216.02
kondygnacje
piętrowe
garaż
z garażem 2 st.
dach
dach wielospadowy
konstrukcja
murowane
zabudowa
domy wolnostojące
piwnica
bez piwnicy
kubatura
1784 m³
dostępne odbicie lustrzane
Nie
Pow. użytkowa
257.57 m²
długość działki
26.42 m
Liczba łazienek
3
Pow. netto
272.36
Powierzchnia dachu
273.4 m²

Opis projektu

Wariant poszerzony domku o 2 m, zmiana układu pomieszczeń na parterze i piętrze.

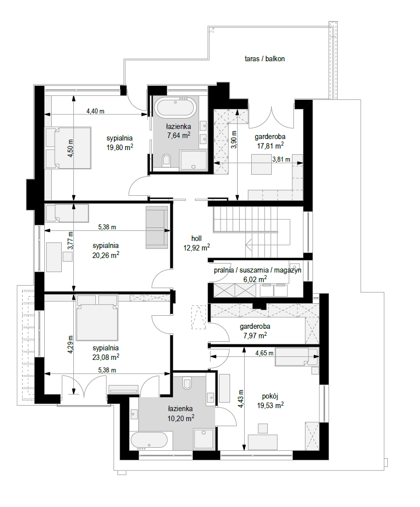
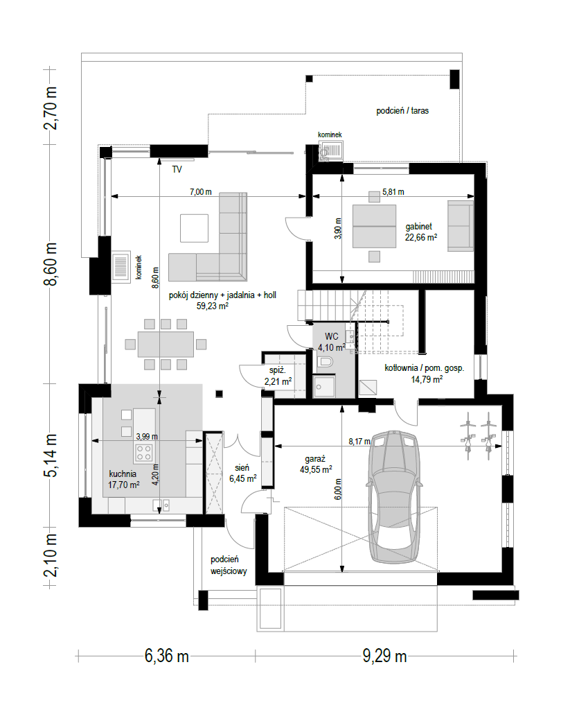
Rzuty

Kondygnacja 1
Kondygnacja 3

Elewacje

Sytuacja

O autorze projektu Oceanic wariant B

9 290 zł

Tylko u nas możesz negocjować cenę!
Skorzystaj z tej możliwości.

Lustrzane odbicie: niedostępne.

Masz dodatkowe pytania?
Zadzwoń lub zamów rozmowę.

Zamów rozmowę

Pomożemy Ci dopasować do twoich potrzeb mymarzony projekt, wpisz swój numer telefonu nasz konsultant oddzwoni.

Negocjuj cenę projektu Oceanic wariant B

Zapytaj pytanie o projekt Oceanic wariant B

Oceny i komentarze

Napisz swoją opinię