- Tylko online
Masz pytania? Chciałbyś negocjować cenę
Zadzwoń! 577 575 011
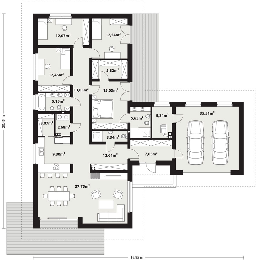
Alan 3 to parterowy dom jednorodzinny, niepodpiwniczony z dwustanowiskowym garażem. Swoim pełnym programem funkcjonalnym zapewnia komfort i wygodę 5-osobowej rodzinie. Przestronna część dzienna to salon połączony z jadalnią, otwierający się na ogród poprzez ogromne przeszklenia, kuchnia ze spiżarnią oraz wc. Część nocna to 4 wygodne sypialnie, łazienka. Dodatkowo główna sypialnia posiada własną garderobę i łazienkę. W domu zaprojektowano dużą kotłownię dostępną z garażu, której parametry pozwalają na montaż kotła na każdy rodzaj paliwa, w tym na paliwo stałe. Część gospodarczą uzupełnia jeszcze pralnia i garaż. Ten optymalny i ciekawy program funkcjonalny został ujęty w prostej bryle na rzucie litery T, przykrytej wielospadowym dachem. Atutem projektu jest jego prostota zarówno w układzie pomieszczeń, jak i w rozwiązaniach elewacji, gdzie elegancki, nowoczesny styl osiągnięto poprzez klasyczne, proste ale szlachetne materiały takie jak szalówka oraz delikatny, subtelny detal.
