- Tylko online
Masz pytania? Chciałbyś negocjować cenę
Zadzwoń! 577 575 011
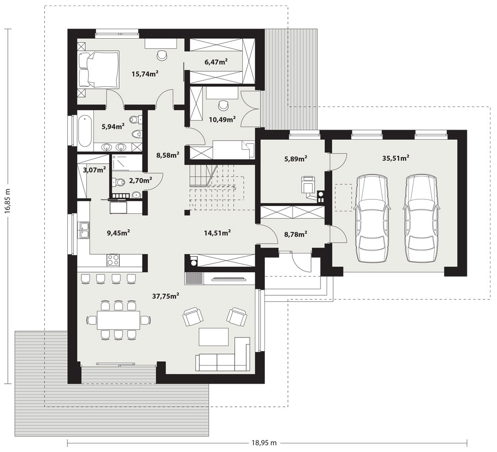
Alan 4 to jednorodzinny budynek mieszkalny, parterowy z użytkowym poddaszem i dwustanowiskowym garażem. Bogaty i funkcjonalny układ pomieszczeń gwarantuje optymalny komfort wieloosobowej rodzinie. Ergonomicznie zaprojektowana i wyraźnie podzielona przestrzeń mieszkalna składa się ze strefy dziennej, nocnej i gospodarczej. Najbardziej reprezentacyjna część domu, to przestronny salon połączony z jadalnią, który otwiera się na duży taras, kuchnia ze spiżarnią, łazienka oraz gabinet. Oprócz części dziennej przewidziano strefę intymną domu, która rozkłada się na dwóch kondygnacjach. Na parterze jest to główna sypialnia z osobną łazienką i garderobą. Na poddaszu przewidziano 2 sypialnie, łazienkę i pralnię. Dużą kotłownię, na każdy rodzaj paliwa oraz dwustanowiskowy garaż zlokalizowano w części gospodarczej domu. Geometria rzutu, harmonia bryły oraz prostota nowoczesnych elewacji czynią ten dom nie tylko łatwym w eksploatacji i utrzymaniu ale również niezwykle eleganckim.
