- Tylko online
Masz pytania? Chciałbyś negocjować cenę
Zadzwoń! 577 575 011
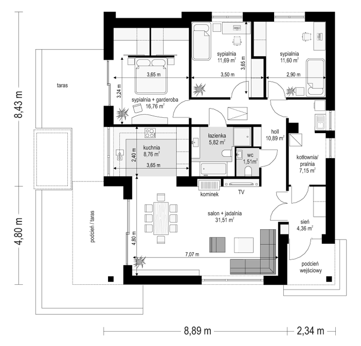
Projekt domu Wspaniały 2 to projekt z serii naszych domków „Wspaniałych”. Jest to budynek parterowy, zbudowany na planie prostokąta, przykryty czterospadowym dachem. Dom mimo swojej prostej formy i bryły, ma ciekawą nowoczesną architekturę, przełamującą monotonię i nudę wielu innych nudnych parterówek. Dzięki zastosowanym detalom i materiałom dom jest oryginalny i inny. Mimo swojej niedużej powierzchni robi wrażenie komfortowego i przestronnego. Dzięki przesunięciu części dziennej na front budynku doskonale nadaje się na działki o niekorzystnym ustawieniu do słońca - z ogrodem z boku domu lub nawet od strony drogi dojazdowej. Podcień wejściowy zlokalizowany w narożniku pozwoli ustawić budynek względem wjazdu frontem lub bokiem - dowolnie, w zależności od pomysłu na zagospodarowanie działki. Narożny podcień, podział elewacji na poziome pasy, czy płata zadaszenia nad tarasem, stanowią piękne urozmaicenie architektury budynku. Duże przeszklenia części dziennej otwierają wnętrze na otaczający ogród. Wnętrze podzielono na jednoprzestrzenną powierzchnię połączonego salonu z jadalnią i kuchnią, oraz na cześć nocną z trzema sypialniami. Sypialnia rodziców ma dwie oddzielne garderoby – jej i jego, sypialnie dziecięce mają wbudowane w ścianę szafy wnękowe. Dodatkowe pomieszczenia gospodarcze - kotłownia i pralnia dopełniają wnętrze. Centralnym miejscem części dziennej jest pięknie skomponowana ściana telewizyjno – kominkowa. Wygodna częściowo otwarta kuchnia ozdobiona jest szerokim oknem między szafkami, przez które można podziwiać ogród. Dom ma prostą konstrukcję, prostą bryłę, jest łatwy i niedrogi w budowie. We „Wspaniałym 2” przewidziano strop nad parterem ora konstrukcję dachu w postaci konstrukcji z wiązarów prefabrykowanych drewnianych, co znacznie uprasza i przyspiesza budowę i obniża jej koszt. Nad parterem znajduje się dodatkowa przestrzeń strychowa do dowolnego wykorzystania. Dom jest energooszczędny, ma bardzo dobre izolacje i zastosowane nowoczesne instalacje, dzięki czemu będzie tani w eksploatacji. „Wspaniały 2” jest odpowiedzią dla Inwestorów poszukujących projektu prostego i nowoczesnego domu, z funkcjonalnym wnętrzem i ciekawą architekturą - niedrogiego i łatwego w budowie. Zapraszamy !
