- Tylko online
Masz pytania? Chciałbyś negocjować cenę
Zadzwoń! 577 575 011
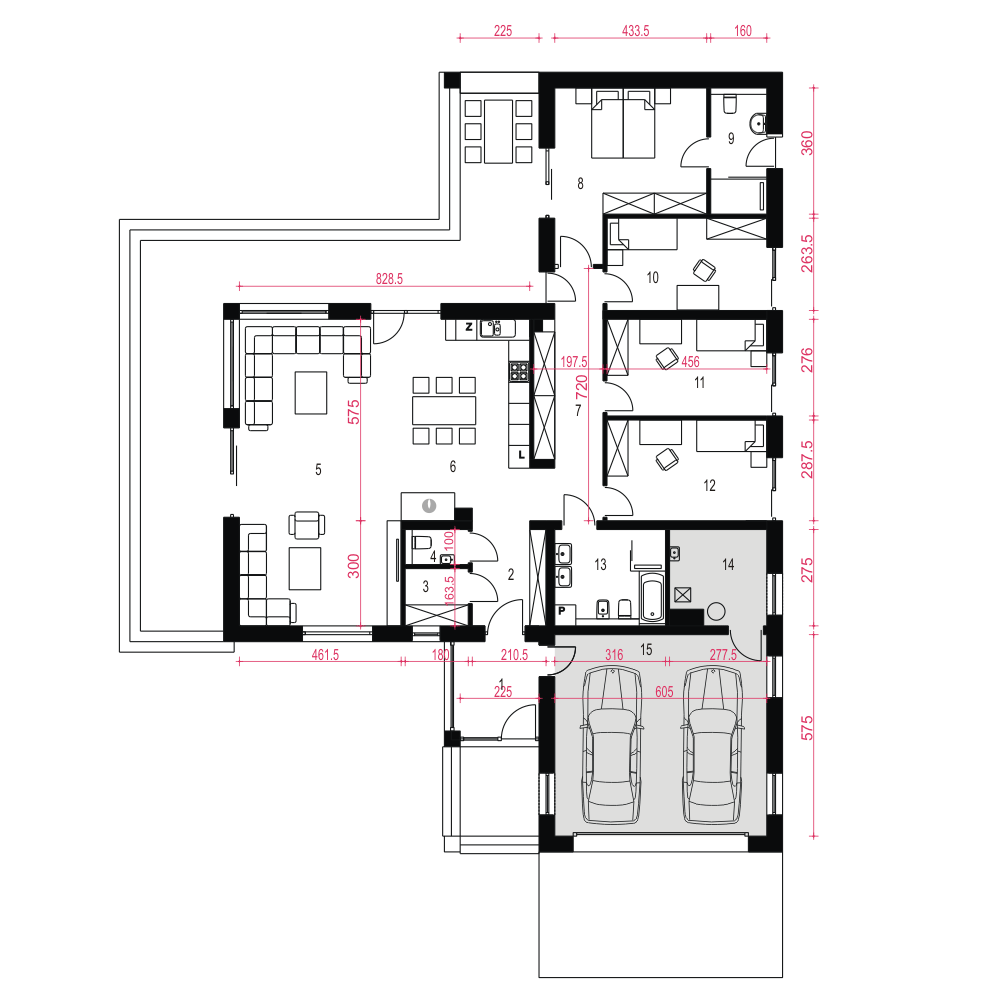
Projekt gotowy Dolomit II to propozycja dla dużych rodzin. Budynek w kształcie litery T z dachem wielospadowym o nowoczesnym kształcie nada się na działki o szerokości frontu 24 m i z wjazdem od południa. Program funkcjonalny to wiatrołap, garderoba, WC, jednoprzestrzenny salon z kuchnią i jadalnią, pomieszczenie CO, a w strefie nocnej cztery sypialnie (jedna typy master bedroom z własną łazienka) oraz wspólna łazienką.fundamenty: BETONOWE ściany: POROTHERM+STYROPIAN rodzaj stropu: TERIVA BIS elewacje: TYNK STRUKTURALNY pokrycie dachu: DACHÓWKA CEM. lub CER.
