- Tylko online
Masz pytania? Chciałbyś negocjować cenę
Zadzwoń! 577 575 011
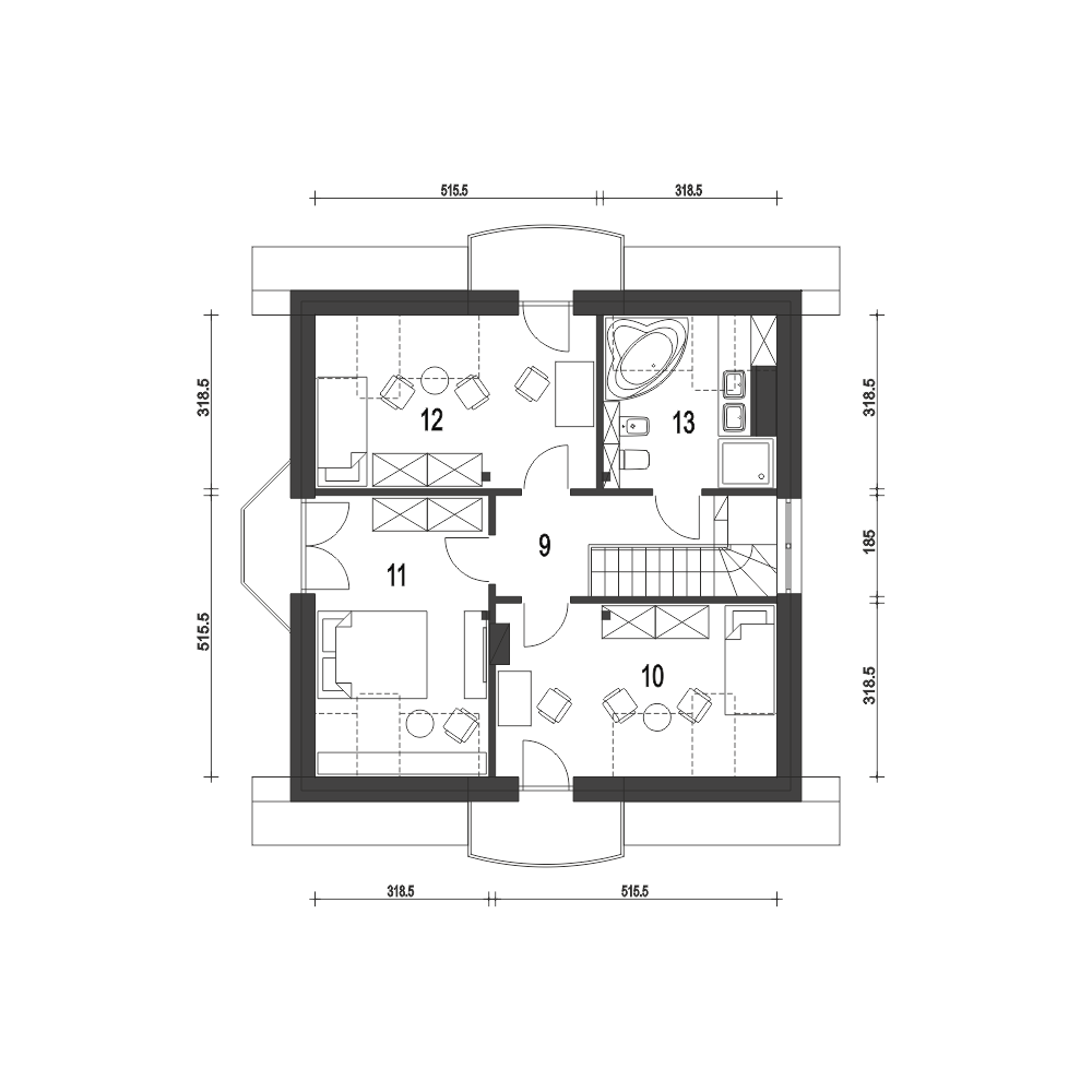
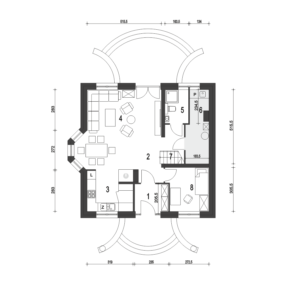
Dom Dla Ciebie 5 w wariancie bez garażu to mniejsza wersja popularnego projektu Dom Dla Ciebie 1. Dom Dla Ciebie 5 to projekt domu o popularnej powierzchni użytkowej około 110 m2. To projekt z użytkowym poddaszem, o tradycyjnej więźbie drewnianej ze ścianką kolankową o wysokości około 1m. Przeznaczony jest dla 4ro osobowej rodziny i tak jak pozostałe projekty z tej serii zaprojektowany został z zachowaniem podziału na dwie strefy: ogólnie dostępną i prywatną. Strefa ogólnie dostępna przewidziana jest na parterze. mamy tu wiatrołap z wnękowymi szafami, hol, kuchnię ze spiżarnią, salon z jadalnią i kominkiem oraz pokój od frontu, który może służyć jako gabinet. Ponadto mamy tu niedużą łazienkę z prysznicem oraz kotłownię z pralnią. Na poddasze prowadzą jednobiegowe schody, którymi ostaniemy się do przedpokoju prowadzącego do 3 wygodnych i dobrze oświetlonych pokoi z balkonami. Jest tu też przewidziana ogólnie dostępną łazienka z narożną wanną i prysznicem. Projekt domu Dom Dla Ciebie 5, to propozycja dla szukających projektu domu tradycyjnego o stylowej architekturze, funkcjonalnym wnętrzu i o energooszczędnych parametrach.
