- Tylko online
Masz pytania? Chciałbyś negocjować cenę
Zadzwoń! 577 575 011
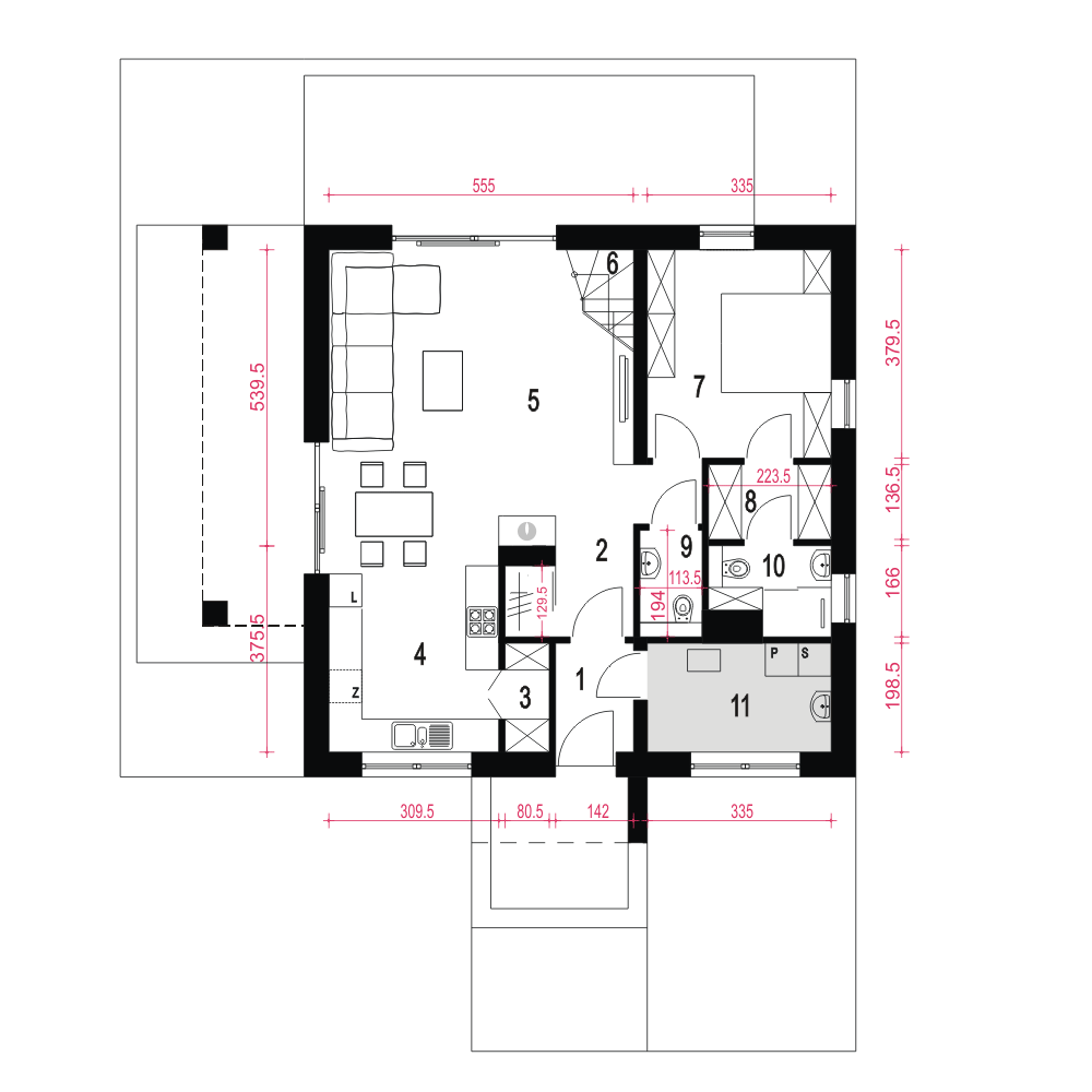
Projekt Nowalia II Mode została zaprojektowana na planie kwadratu. Prosta forma budynku oraz dwuspadowy dach wpłynie pozytywnie na koszty budowy. Jest to dom wolnostojący z poddaszem użytkowym. Strefa dzienna na parterze składa się z: salonu z kominkiem, jadalni, otwartej kuchni ze spiżarnią. Na parterze przewidziano również sypialnię z łazienką, wiatrołap, hol z garderobą WC, kotłownia z piecem CO. Na poddasze wchodzi się schodami z salonu. Tu zaprojektowano hol oraz trzy sypialnie i salon kąpielowy. Dom nadaje się dla 4-5 osobowej rodziny. Architektura zewnętrzna zawiera elementy nowoczesne.
