- Tylko online
Masz pytania? Chciałbyś negocjować cenę
Zadzwoń! 577 575 011
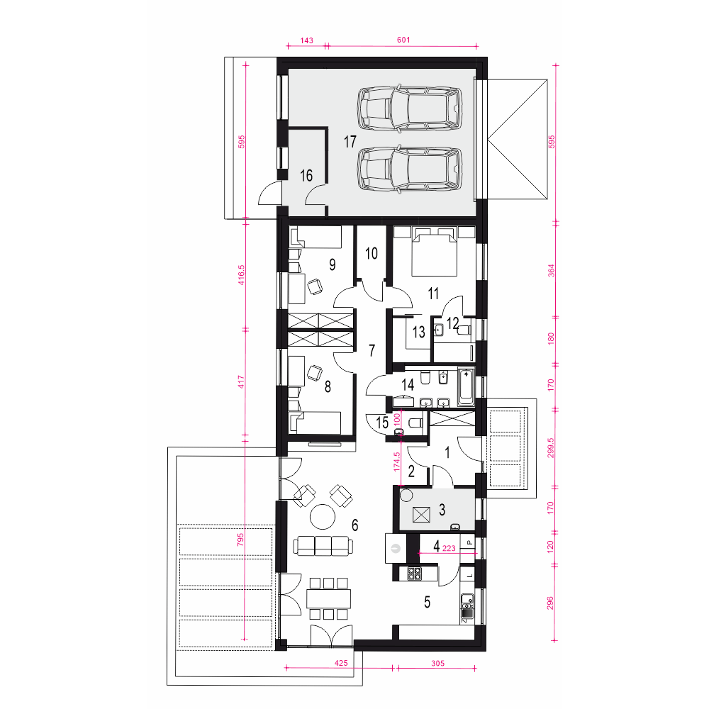
Flora to projekt nowoczesnego parterowego domu typu stodoła. Przedstawiony wariant posiada przybudowany dwustanowiskowy garaż z pomieszczeniem gospodarczym. To propozycja domu jednorodzinnego o maksymalnie uproszczonej formie - z dachem dwuspadowym na planie prostokąta. Flora to projekt kompaktowego domu parterowego przeznaczonego dla czteroosobowej rodziny. Obszerna i wygodna strefa dzienna sprzyja relaksowi. Wygodny salon posiada duże przeszklenia wychodzące na ogród. Usytuowanie kuchni pozwala na jej zamknięcie. Zaprojektowana obok spiżarnia pomieści dodatkowe sprzęty i zapasy. Strefa nocna to 3 sypialnie, w tym jedna z własną łazienką i garderobą, wspólna łazienka z oknem, oraz wspólna garderoba. W projekcie przewidziano ogrzewanie na paliwo stałe.
