- Tylko online
Masz pytania? Chciałbyś negocjować cenę
Zadzwoń! 577 575 011
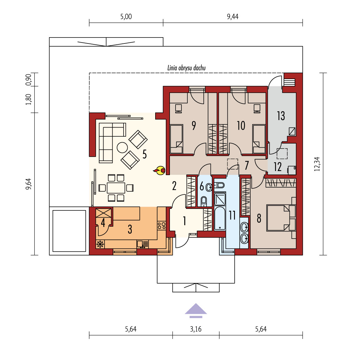
Charakterystyka: Dom parterowy, niepodpiwniczony, z garażem jednostanowiskowymPrzeznaczenie: Dom dla 2-4-osobowej rodziny Technologia i konstrukcja:Ściany zewnętrzne: murowane, dwuwarstwowe, beton komórkowy firmy H+H 24 cm, ocieplenie styropian Termo Organika 20 cmŚciany wewnętrzne: nośne i działowe murowane, beton komórkowy firmy H+H 24 cm i 12 cmDach: stropodach pełny,strop gęstożebrowy Teriva, ocieplenie wełna mineralna Isover 30 cm Rozwiązania instalacyjne:Ogrzewanie: kocioł gazowy kondensacyjny firmy Viessmann, rozprowadzenie ciepła: grzejniki firmy PurmoWentylacja: grawitacyjna Wykończenie:Elewacje: tynk cienkowarstwowy mineralny w kolorze białym TO-PA001 z palety firmy Termo Organika, okładzina drewniana w układzie pionowym z efektem 3D z barwionego modrzewia syberyjskiego lub świerku skandynawskiegoStolarka: drewniana, PVC lub aluminiowa, drzwi tarasowe podnoszono-przesuwne typu HS aluminiowo-drewniane INNOVIEW firmy Fakro, istnieje możliwość montażu rolet zewnętrznych w systemie QuadBox firmy BeClever, drzwi wewnętrzne i wejściowe firmy HörmannOkna dachowe: okna do dachów płaskich firmy FakroOtoczenie: kostka betonowa i płyty tarasowe firmy Libet, system tarasowy ProDeck - deska kompozytowa Terra w kolorze orzechWersje domów w serii Mini 4 - zapytaj o dostępność: - Mini 4 – wersja podstawowa, 3 sypialnie, dach czterospadowy - Mini 4 (wiązary) – układ funkcji taki sam jak w wersji podstawowej, system suchej zabudowy ścian działowych Rigips, wiązary prefabrykowane, rozwiązania materiałowo-technologiczne Grupy Saint-Gobain - Mini 4 w. II – układ funkcji podobny do wersji podstawowej (inny układ otworów okiennych i drzwiowych), 3 sypialnie, zadaszony taras ogrodowy, dach dwuspadowy z okapami - Mini 4 w. III – układ funkcji podobny do wersji podstawowej (inny układ otworów okiennych i drzwiowych),4 sypialnie, zadaszony taras ogrodowy, dach dwuspadowy bez okapów - Mini 4 MODERN – układ funkcji podobny do wersji podstawowej (zmiany w strefie wejściowej, kuchni, kotłowni, inny układ otworów okiennych i drzwiowych), 3 sypialnie, dach płaski - Mini 4 PLUS – instalacje energooszczędne firmy Viessmann: pompa ciepła, wentylacja mechaniczna z rekuperacją, system fotowoltaiczny oraz ogrzewanie podłogowe firmy Purmo - Mini 4 PLUS reco – instalacje energooszczędne firmy Vaillant: pompa ciepła, wentylacja mechaniczna z rekuperacją, system fotowoltaiczny oraz ogrzewanie podłogowe firmy Purmo- wszystkie wersje o podobnym układzie funkcji oraz z inną propozycją wykończenia elewacji - wszystkie wersje z trzema wariantami garaży: bez garażu, z garażem jedno- i dwustanowiskowym - odbicie lustrzane do każdej wersjiWszystkie wersje domów możliwe w dwóch standardach/wariantach instalacyjnych: - ENERGO: kocioł gazowy kondensacyjny, grzejniki, wentylacja grawitacyjna, OZE: kolektory słoneczne - ENERGO PLUS: pompa ciepła, ogrzewanie podłogowe, wentylacja mechaniczna, OZE: system fotowoltaicznyIstnieje techniczna możliwość: - podpiwniczenia budynku - zmiany kąta nachylenia dachu do 30º oraz adaptacji poddasza na strych - wykonania budynku w technologii szkieletowej Warianty działek dla wersji domu z garażem jedno- i dwustanowiskowym:
