- Tylko online
Masz pytania? Chciałbyś negocjować cenę
Zadzwoń! 577 575 011
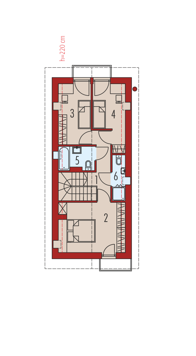
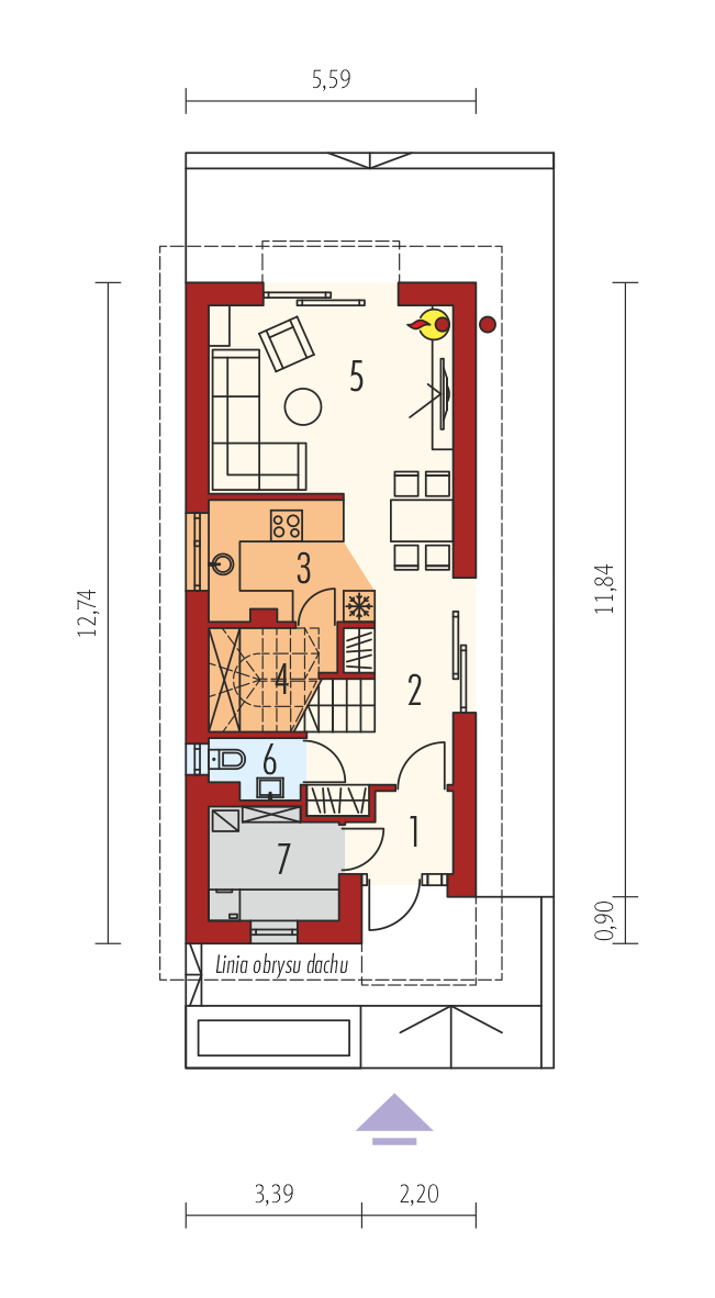
Charakterystyka: Dom z poddaszem użytkowym, niepodpiwniczonyPrzeznaczenie: Dom dla 2-4-osobowej rodziny Technologia i konstrukcja:Ściany zewnętrzne: murowane, dwuwarstwowe, beton komórkowy firmy H+H 24 cm, ocieplenie styropian Termo Organika 20 cmŚciany wewnętrzne: ścianki działowe murowane, beton komórkowy firmy H+H 24 cm i 12 cmStrop międzypiętrowy: gęstożebrowy TerivaDach: konstrukcja drewniana, dachówka płaska, ocieplenie wełna mineralna Isover 30 cmInne: schody wewnętrzne drewniane Rozwiązania instalacyjne:Ogrzewanie: kocioł gazowy kondensacyjny firmy Viessmann, rozprowadzenie ciepła: grzejniki firmy PurmoWentylacja: grawitacyjna Dodatkowo: stacja uzdatniania wody firmy ViessmannOZE: kolektory słoneczneWykończenie:Elewacje: tynk cienkowarstwowy mineralny w kolorze białym TO-PA001 i szarym TO-GY010 z palety firmy Termo Organika, okładzina drewniana w kolorze jasny orzechStolarka: drewniana, PVC lub aluminiowa, drzwi tarasowe podnoszono-przesuwne typu HS aluminiowo-drewniane Innoview firmy Fakro, rolety zewnętrzne w systemie QuadBox firmy BeClever, drzwi wejściowe firmy HörmannOkna połaciowe: rozwiązania technologiczne i wyłaz dachowy firmy FakroOtoczenie: kostka betonowa i płyty tarasowe firmy Libet, system tarasowy ProDeck - deska kompozytowa Terra w kolorze orzech Wersje domów w serii Moniczka - zapytaj o dostępność: - Moniczka – wersja podstawowa, dom piętrowy, 2 sypialnie, dach z okapami o kącie nachylenia 30° - Moniczka II (wersja A) – podobny układ funkcji, dłuższy budynek, dom z poddaszem użytkowym, 3 sypialnie i 2 łazienki na poddaszu, dach z okapami o kącie nachylenia 45° - Moniczka II (wersja B) – inna propozycja wykończenia materiałowo-kolorystycznego elewacji - Moniczka II (wersja C,D) – inna propozycja wykończenia materiałowo-kolorystycznego elewacji, dach bez okapów - Moniczka III ENERGO PLUS reco - układ funkcji jak w wersji II, dłuższy i szerszy budynek, dom z poddaszem użytkowym, 3 sypialnie i 2 łazienki na poddaszu, dach bez okapów o kącie nachylenia 45°, energooszczędne instalacje firmy Vaillant - Moniczka IV (wersja A) – podobny układ funkcji, inna propozycja wykończenia materiałowo-kolorystycznego elewacji, dach bez okapów o kącie nachylenia 45° - Moniczka IV (wersja B) – podobny układ funkcji jak w wersji A, inna propozycja wykończenia materiałowo-kolorystycznego elewacji, dach bez okapów o kącie nachylenia 45° - odbicie lustrzane do wszystkich wersjiWszystkie wersje domów możliwe w dwóch standardach/wariantach instalacyjnych: - ENERGO: piec gazowy kondensacyjny, grzejniki, wentylacja grawitacyjna - ENERGO PLUS: pompa ciepła, ogrzewanie podłogowe, wentylacja mechaniczna, dodatkowo panele fotowoltaiczneIstnieją techniczne możliwości wykonania zmian: - podpiwniczenia budynku - wykonania budynku w technologii szkieletowej - dokonania zmian funkcjonalnych wg indywidualnych wymagań
