- Tylko online
Masz pytania? Chciałbyś negocjować cenę
Zadzwoń! 577 575 011
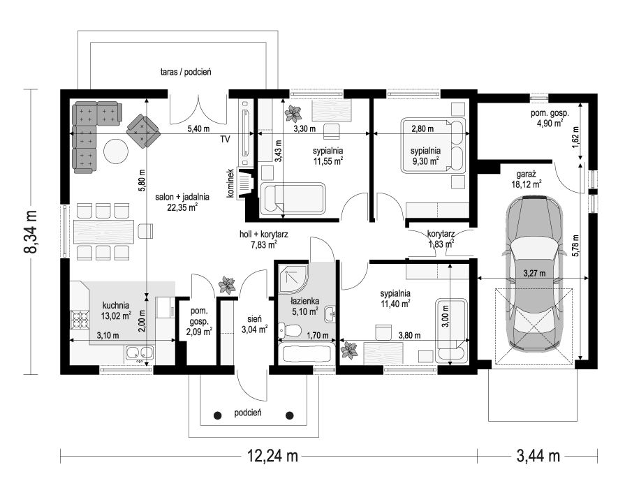
Wariant projektu klasycznego w konstrukcji szkieletowej. Zapraszamy do zapoznania się ze wszystkimi projektami domów z tej serii: wersja podstawowa projekt domu Jak Marzenie, z dobudowanym garażem (projekt domu Jak Marzenie z garażem), z użytkowym poddaszem (projekt domu Jak Marzenie 2), poszerzoną (projekt domu Jak Marzenie 3). Wszystkie projekty domów dostępne są w odbiciu lustrzanym.
