- Tylko online
Masz pytania? Chciałbyś negocjować cenę
Zadzwoń! 577 575 011
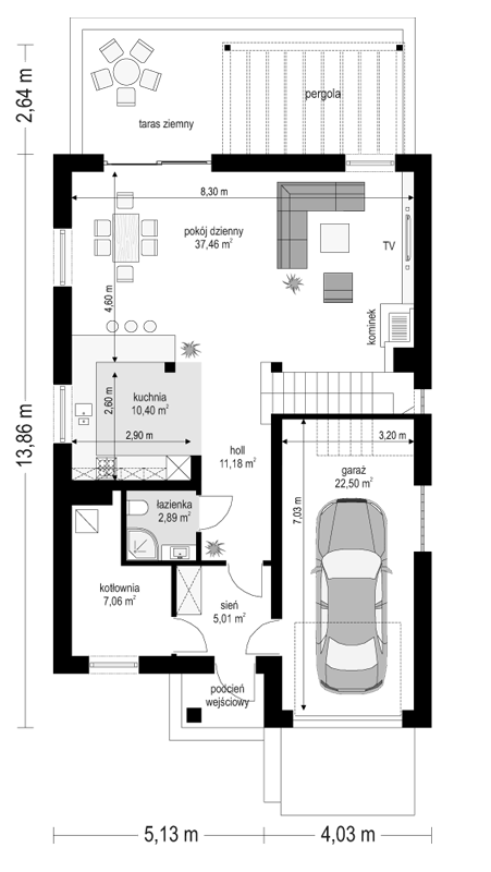
Projekt domu Leo to bardzo ciekawy nowoczesny projekt domu jednorodzinnego, dla 4- 5-osobowej rodziny. Projekt domu Leo łączy w sobie nowoczesny look, bezpretensjonalność, prostotę geometrii i konstrukcji, oraz funkcjonalność i klarowność wnętrza. Dom – dzięki zwartej bryle, zbudowanej na planie prostokąta, jest energooszczędny, a także łatwy i niedrogi w budowie. Dzięki dość wąskiej elewacji frontowej zmieści się na działce o szerokości zaledwie 16 m. Budynek w łatwy sposób można zamienić na bliźniaka, można z niego także zrobić szeregówkę. Prosty układ konstrukcyjny - parterowa bryła z poddaszem przekrytym dwuspadowym dachem – nie powinien sprawić kłopotów wykonawczych żadnej ekipie budowlanej. Właściwy stosunek powierzchni przegród zewnętrznych do uzyskanej kubatury sprzyja energooszczędności domu. Wygląd zewnętrzny Leo, dzięki zastosowanym materiałom prezentuje się bardzo nowocześnie. Charakteru dodają okna połaciowe w zestawie z oknami ścianki kolankowej. Dają one fantastyczny efekt we wnętrzu pokoi. Od strony elewacji frontowej bryłę urozmaica wystający nieco garaż, oraz podcień wejściowy. Od strony ogrodu możemy wyjść z salonu na taras przez ładne przeszklone drzwi. Taras częściowo osłania finezyjna pergola, która może być również daszkiem. Wnętrze Leo podzielono na część dzienną, oraz gospodarczą na parterze i sypialnie na poddaszu. Na parterze zaprojektowano bardzo ładne jednoprzestrzenne wnętrze połączonego salonu z jadalnią, kuchnią i holem. Kuchnia jest otwarta na salon – można ją łatwo oddzielić ścianką działową. Pozostałe pomieszczenia parteru to wygodny garaż z magazynem pod schodami, kotłownia, łazienka i przedsionek. Na poddaszu znajdziemy cztery bardzo ładne, ustawne sypialnie, oraz łazienkę. Wnętrze można dowolnie modyfikować przestawiając ścianki działowe - zostawiając na przykład trzy sypialnie i dodając jeszcze jedną łazienkę i garderobę rodziców. Nad poddaszem jest jeszcze bardzo ładny strych, który również można zaadaptować. Projekt domu Leo to projekt dla Klientów szukających prostej konstrukcji, bez udziwnień, chcących „wycisnąć” jak najwięcej powierzchni za jak najrozsądniejsze pieniądze. Pracownia posiada odbicie lustrzane projektu.
