- Tylko online
Masz pytania? Chciałbyś negocjować cenę
Zadzwoń! 577 575 011
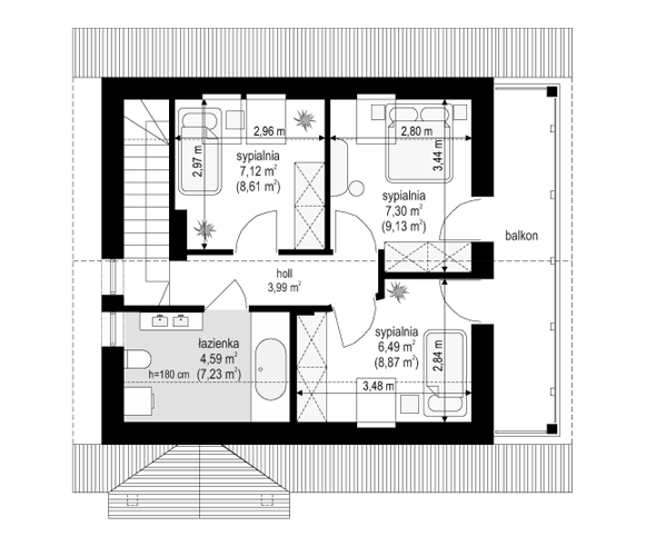
Projekt domu Milutki przeznaczony jest dla 3- 4-osobowej rodziny. Dom został zaprojektowany jako jednorodzinny całoroczny, może też służyć jako budynek letniskowy. Prostokątny rzut parteru został przykryty dwuspadowym dachem, mieszczącym w sobie poddasze użytkowe. Ciekawą bryłę urozmaicono zadaszeniem tarasu i balkonem od strony ogrodu, oraz wspartym na dwóch kolumienkach daszkiem nad wejściem. Architektura domu łączy w sobie tradycyjną formę, z nowoczesnym detalem i materiałami. Projekt dzięki swojej bezpretensjonalności doskonale wpisuje się w każde otoczenie. Milutki dobrze będzie wyglądał i w górach, i na Mazurach :-). Wnętrze domu podzielono na część dzienną na parterze i sypialnie na poddaszu. Połączone pomieszczenia salonu, kuchni i holu tworzą dużą otwartą wspólną przestrzeń. Sprytnie umiejscowione schody na piętro są ozdobą pokoju dziennego. Centralnie umieszczony komin obsługuje zarówno kominek w salonie jak i kocioł w sąsiedniej kotłowni. Kotłownia zaprojektowana jako gazowa, może być łatwo dostosowana dla pieca na paliwo stałe. Na poddaszu znalazło się miejsce dla trzech niewielkich sypialni i łazienki. Ścianki działowe poddasza można łatwo i dowolnie przestawiać, zmieniając konfigurację pomieszczeń. Projekt domu Milutki uwzględnia bardzo dobre ocieplenia przegród. Dom jest energooszczędny - zastosowano w nim nowoczesne instalacje. Dzięki prostej i niedrogiej w realizacji konstrukcji z jednej strony i zastosowanym energooszczędnym technologiom z drugiej strony, dom będzie tani w budowie i późniejszej eksploatacji. Projekt domu Milutki jest idealną propozycją dla liczących pieniądze Inwestorów pragnących mieszkać w oszczędnym i uroczym domku jednorodzinnym. Pracownia posiada odbicie lustrzane projektu.
