- Tylko online
Masz pytania? Chciałbyś negocjować cenę
Zadzwoń! 577 575 011
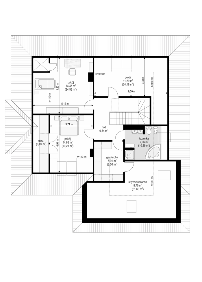
Projekt domu Natalia to wygodny, obszerny dom jednorodzinny dla rodziny dwu lub trzypokoleniowej. Dom Natalia posiada kopertowy dach, podcienie, wykusz i okładziny klinkierowe tworzą udane połączenie. Wnętrze domu zaprojektowano tak, aby w pierwszym etapie można było zagospodarować tylko parter. Pokoje na parterze mogą być sypialnią i gabinetem rodziców, sypialnią dziadków lub pokojami gościnnymi. Poddasze można wykończyć w drugim etapie. Dostępne jest także odbicie lustrzane projektu Natalia oraz inne wersje projektu: wersja przystosowana do działki z niekorzystnym względem stron świata wjazdem (projekt domu Natalia 2), wersja z dodatkową sypialnią (projekt domu Natalia 3), wersja przystosowana do wąskich działek (projekt domu Natalia 4). Zapraszamy!
