- Tylko online
Masz pytania? Chciałbyś negocjować cenę
Zadzwoń! 577 575 011
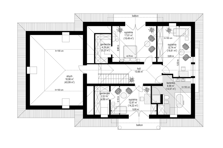
Projekt domu Ofelia to propozycja MG Projekt z grupy domków, których protoplastą jest popularny domek Julka. Projekt domu Ofelia - dzięki swojej symetrycznej elewacji z frontowym gankiem i dużą lukarną z balkonem nad drzwiami wejściowymi, przypomina również inny dom z naszej kolekcji - Benedykt 2. W czasach gdy wszyscy gonią za nowoczesnością miło mieć punkt odniesienia – coś niezmiennego, niewychodzącego z mody. Dom o trwałej tradycyjnej architekturze, który na pewno nie zestarzeje się, gdy przeminie moda na kolejne domy – pudełka. Projekt domu Ofelia to wzorowy reprezentant stylu „dworkowego”, a do tego dom o nowoczesnym funkcjonalnym wnętrzu, zaprojektowany w nowoczesnej i energooszczędnej technologii. Bezpretensjonalna architektura, z zachowaną harmonią, proporcjami i symetrią każdej elewacji, doskonale wkomponuje się w każde otoczenie. Bryła budynku jest reprezentacyjna, ale zachowuje ludzką skalę. Na parterze zaprojektowano otwartą część dzienną - z salonem, aneksem jadalnym, kuchnią i holem, dwa dodatkowe pokoje, oraz część gospodarczą – garaż i kotłownię. Na poddaszu przewidziano trzy wygodne sypialnie z garderobami, oraz dużą łazienkę. Nad garażem znajduje się strych, który można wykorzystać jako poddasze. Wygoda i przestrzeń to podstawowe atutu tego projektu. Nic nie jest tutaj na niby – to prawdziwa mała rezydencja. Mamy tu spiżarnię, jadalnię w której zmieści się duży stół, salon, w którym zmieszczą się meble wypoczynkowe, szerokie i wygodne schody, duży hol czy przedsionek. Materiały i technologie zastosowane w projekcie są energooszczędne, układ konstrukcji jest klarowny i nie sprawi kłopotu wykonawcy podczas budowy. Projekt domu Ofelia z pewnością przypadnie do gustu osobom szukającym komfortowego, dobrze przemyślanego domu, którzy z jednej strony marzą o reprezentacyjnej willi, z drugiej strony nie chcę przesadzić z wielkością domu. Pracownia posiada również odbicie lustrzane projektu domu Ofelia oraz inne wersje tej popularnej serii: projekt domu Ofelia 2, projekt domu Ofelia 3. Zapraszamy!
