- Tylko online
Masz pytania? Chciałbyś negocjować cenę
Zadzwoń! 577 575 011
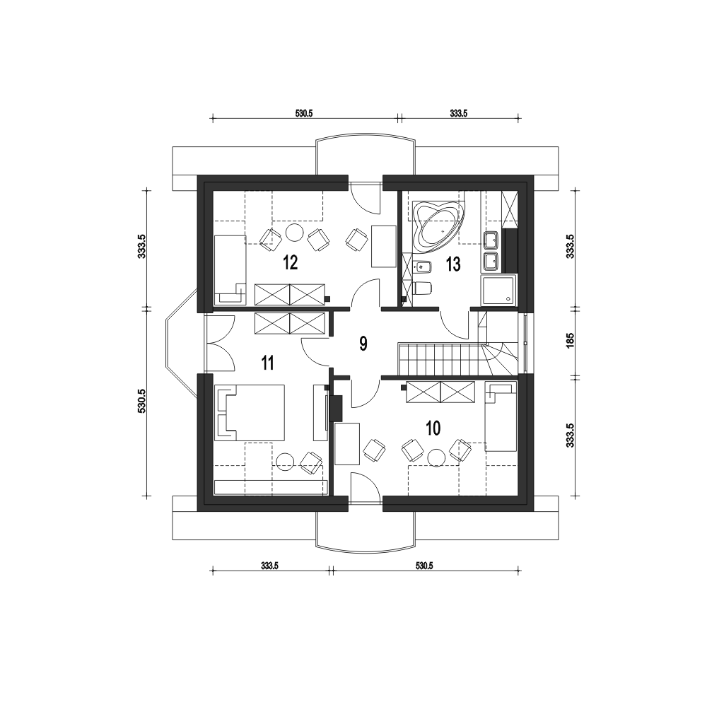
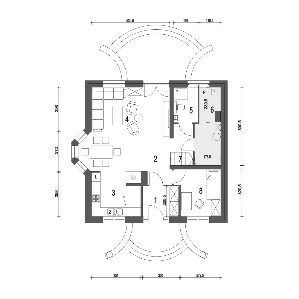
Dom Dla Ciebie 3 bez garażu w wariancie B1 to wariant z podniesioną ścianka kolankową, która w stanie wykończonym ma około 1,17m wysokości. Ten uroczy dom przeznaczony jest dla 4ro osobowej rodziny. Zaprojektowany jest z zachowaniem podziału na dwie strefy: dzienną na parterze i nocną na poddaszu. Na parterze mamy przewidziany wiatrołap z wnękowymi szafami, następnie mamy wygodny hol z którego dostaniemy się do kuchni ze spiżarnią, do salonu z jadalnią i kominkiem. Na parterze mamy jeszcze przewidziany pokój usytuowany od frontu, który może być wykorzystywany np jako gabinet. Przy schodach zaprojektowano łazienkę z prysznicem oraz pralnię z co. Poddasze przewiduje ustawne, doświetlone pokoje - każdy z własnym balkonem. Przy schodach zaprojektowano ogólnie dostępną łazienkę z narożną wanną i prysznicem. Poddasze zaprojektowane jest pod dwuspadowym dachem opartym na tradycyjnej więźbie drewnianej. Projekt Dom Dla Ciebie 3, to idealna propozycją domu dla osób poszukujących tradycyjnego domu o stylowej architekturze i przemyślanej funkcji. Projekt Dom Dla Ciebie 3 zaprojektowany jest w standardzie projektów energooszczędnych.
