- Tylko online
Masz pytania? Chciałbyś negocjować cenę
Zadzwoń! 577 575 011
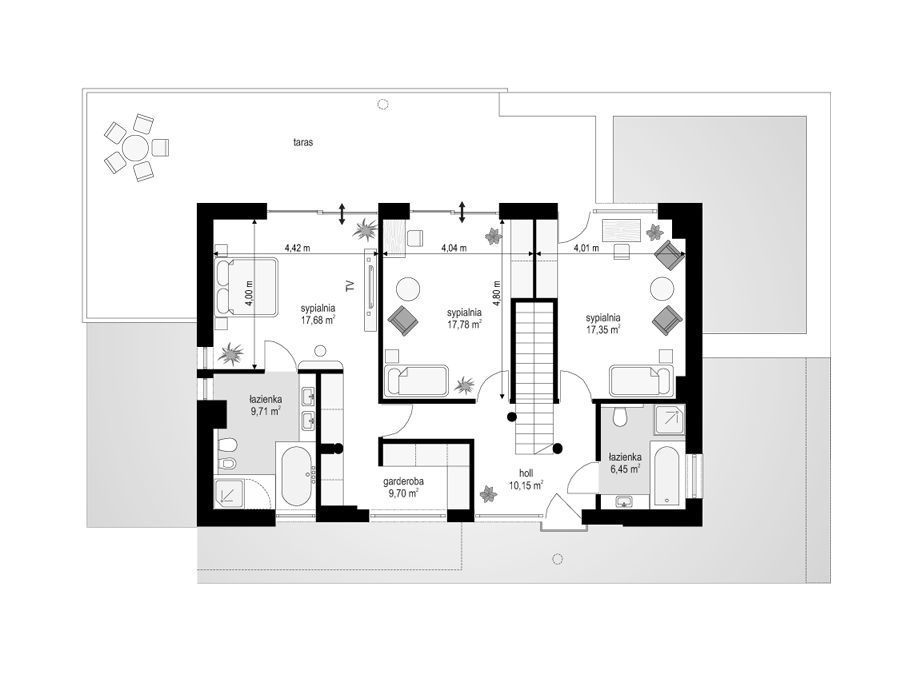
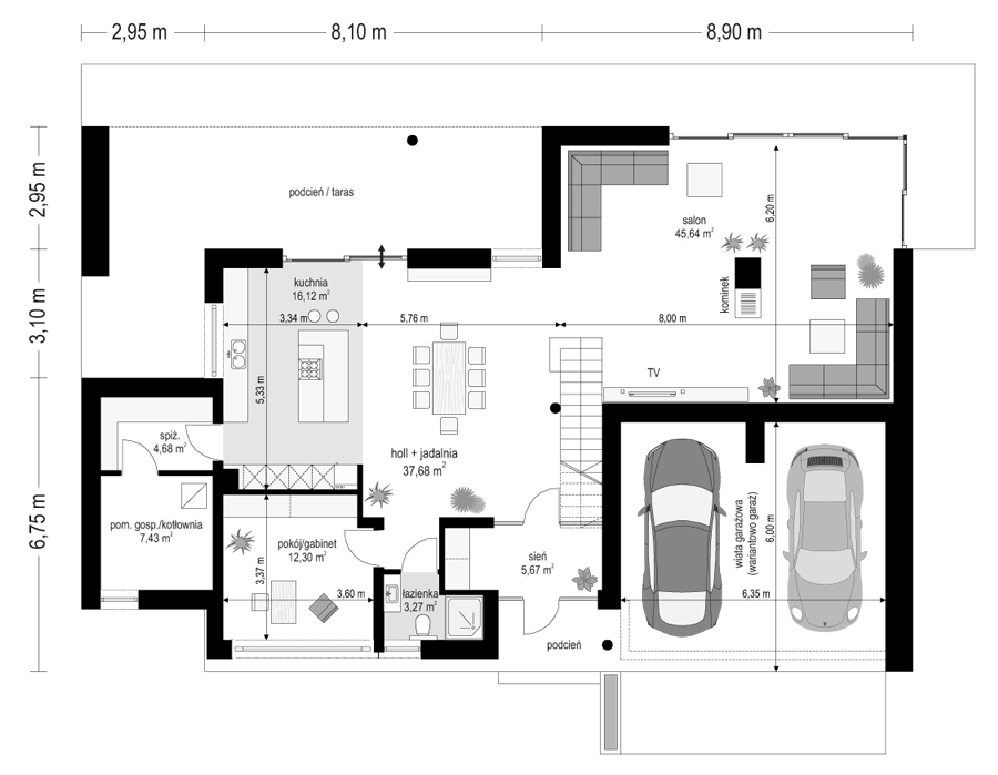
Projekt domu Willa l' Azur to elegancki, piętrowy dom jednorodzinny z płaskim dachem, przeznaczonym dla 4- 5-osobowej rodziny. Budynek składa się z głównej, jednopiętrowej bryły, otoczonej parterowymi dobudówkami, zadaszeniami i tarasami. Architektonicznie dom Willa l' Azur nawiązuje do modernistycznych, XX-wiecznych willi z płaskimi dachami - we współczesnym ujęciu, z zastosowaniem nowoczesnych materiałów i rozwiązań. Projekt domu Willa l' Azur jest jednocześnie ciekawy i intrygujący, zarazem stonowany i powściągliwy w wyrazie. Przenikające się nawzajem piętrowe i parterowe prostopadłościany brył, frontowe i ogrodowe masywne zadaszenia, duże, eksponujące wnętrze przeszklenia - wszystko to tworzy niepowtarzalną całość. Kontrastujące powierzchnie białych ścian, w zestawieniu z drewnianymi okładzinami, oknami i światłocieniem tworzą bardzo "rzeźbiarską" formę budynku. Dom zaprojektowano w dwóch wersjach wariantowych - z wiatą garażową od strony frontowej, lub z zamkniętym garażem - do wyboru. Wnętrze willi klasycznie podzielono na cześć dzienną na parterze i sypialnie na piętrze. Z przeszklonego dużego przedsionka przechodzimy do centralnego holu - jadalni, połączonego z otwartą kuchnią z wyspą, oraz pięknym salonem z centralnie ustawionym trójstronnym kominkiem. Salon w domu Willa l'Azur na większej części ma podwyższony do półtorej kondygnacji sufit, oraz piękne przeszklone otwarcie na ogród. W salonie mieszczą się dwa zestawy mebli wypoczynkowych. Kuchnia połączona jest z zapleczem gospodarczym domu - z kotłownią i spiżarnią. Na parterze zaprojektowano dodatkowy pokój - np. gabinet, łazienkę i wiatę garażową lub zamknięty garaż. Na piętrze znajdują się trzy sypialnie, w tym apartament rodziców z osobną garderobą i łazienką. Z sypialni można wyjść na piękny taras na piętrze. Pracownia posiada również odbicie lustrzane projektu domu Willa l'Azur.
