- Tylko online
Masz pytania? Chciałbyś negocjować cenę
Zadzwoń! 577 575 011
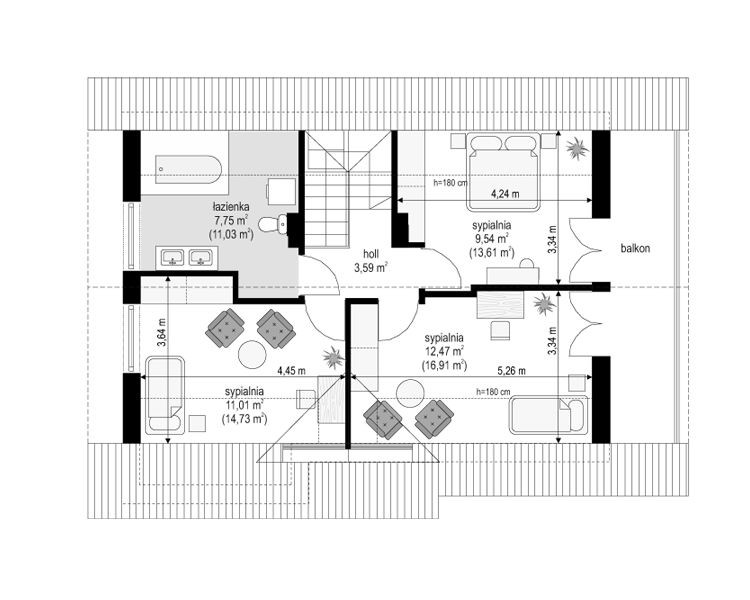
Projekt domu Wisełka to parterowy, jednorodzinny dom z poddaszem użytkowym, przekryty dwuspadowym, symetrycznym dachem. Projekt domu Wisełka zaprojektowano z myślą o 4- 5-osobowej rodzinie. Dom może służyć również jako letniskowy. Architektonicznie budynek nawiązuje do południowych rejonów Polski. Drewniane wykończenia szczytów domu Wisełka, słupy z zastrzałami, balkon, kamienne okładziny elewacji - wszystkie te elementy przywodzą na myśl podhalańskie wzory. Jednocześnie inspiracja jest na tyle delikatna, że domek nie będzie wyglądał dziwnie wybudowany na Mazurach, Śląsku, czy Mazowszu. Wnętrze domu Wisełka podzielono na część dzienną na parterze, oraz sypialnie na poddaszu. Na parterze zaprojektowano salon połączony z otwartą kuchnią i holem, oraz pięknym szerokim przeszklonym wyjściem na częściowo zadaszony taras i ogród. W centralnym miejscu umieszczono kominek i schody na górę. Dodatkowo na parterze przewidziano garaż i kotłownię. Na poddaszu znajdują się trzy sypialnie i łazienka. Pracownia posiada odbicie lustrzane projektu domu Wisełka, oraz wersję z dodatkowym pokojem zamiast garażu. Zapraszamy!
