- Tylko online
Masz pytania? Chciałbyś negocjować cenę
Zadzwoń! 577 575 011
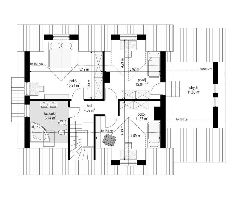
Projekt domu Zgrabny z lukarnami jest odpowiedni dla rodziny 4- 5-osobowej. Powstał jako wariantowa wersja projektu Zgrabny. Prosty dwuspadowy dach został urozmaicony dużymi lukarnami z przodu i z tyłu domu. Na parterze domu Zgrabny z lukarnami oprócz salonu zaprojektowano dodatkowy pokój i łazienkę. Na poddaszu mieszczą się trzy sypialnie, duża łazienka i strych nad garażem. Projekt domu Zgrabny z lukarnami charakteryzuje się reprezentacyjną architekturą i funkcjonalnymi wnętrzami. Pracownia posiada również wersję projektu w odbiciu lustrzanym oraz inne jego wersje: projekt domu Zgrabny, projekt domu Zgrabny 2, projekt domu Zgrabny 3, projekt domu Zgrabny 4, projekt domu Zgrabny 5, projekt domu Zgrabny z przedsionkiem. Zapraszamy!
