- Tylko online
Masz pytania? Chciałbyś negocjować cenę
Zadzwoń! 577 575 011
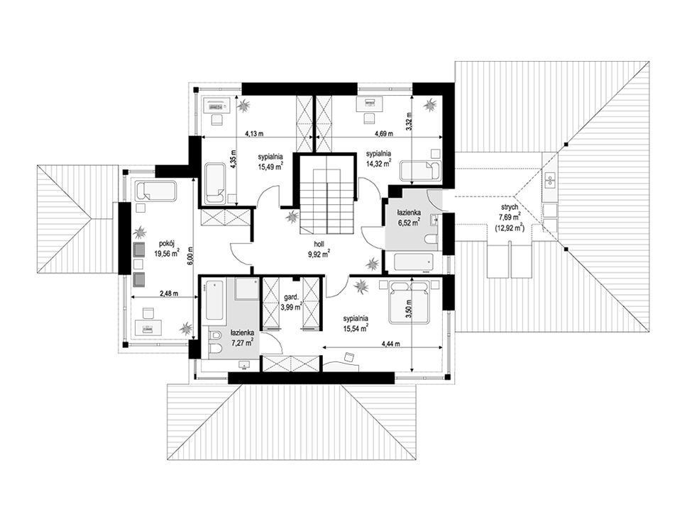
Wariant projektu ze zmianami:zmiana funkcji oraz rozmieszczenia pomieszczeń oraz stolarki okiennej i drzwiowej, zmiana usytuowania komina
