- Tylko online
Masz pytania? Chciałbyś negocjować cenę
Zadzwoń! 577 575 011
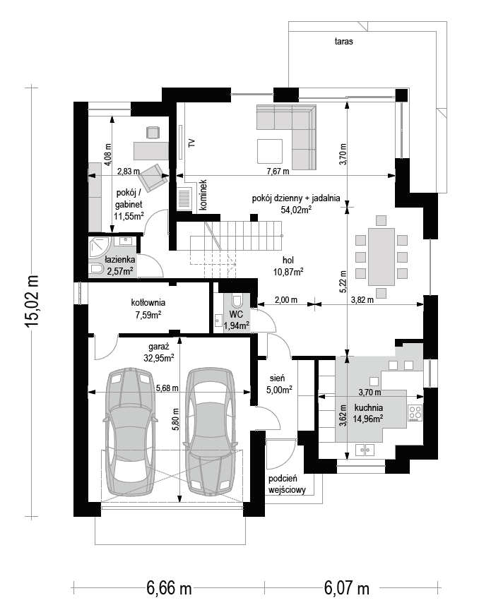
Wariant ze stropem monolitycznym nad parterem oraz likwidacja podcienia tarasowego i loggii.
