- Tylko online
Masz pytania? Chciałbyś negocjować cenę
Zadzwoń! 577 575 011
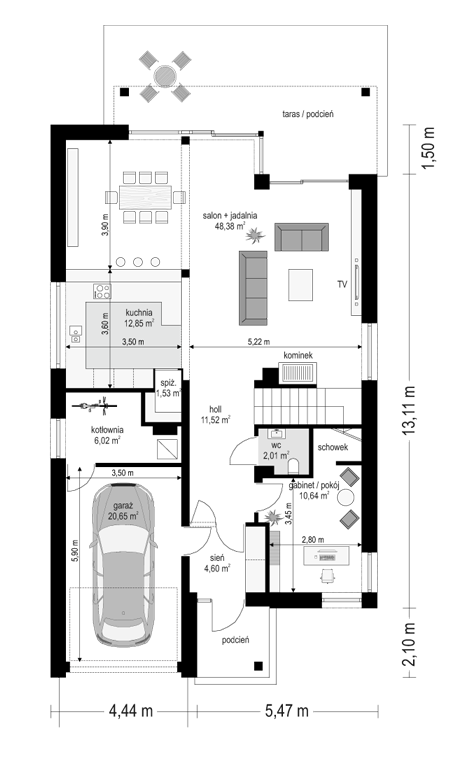
Projekt domu Otwarty 5 jest naszą kolejną propozycją z kolekcji domów „Otwartych”, czyli próba zmieszczenia budynku o podobnej do „Otwartych” funkcji i stylu architektonicznym na nieco węższej działce. Dom jest typowym dachowcem, budynkiem parterowym z użytkowym poddaszem, przykrytym symetrycznym dwuspadowym dachem, z charakterystycznym przesunięciem ściany szczytowej zarówno frontowej, jak i tylnej - ogrodowej, dzięki czemu uzyskujemy bardzo ładne oryginalne wejście do domu, oraz wygodny zadaszony taras i balkon. Architekturę domu definiują piękne przeszklenia, łączące wnętrze z otaczającym ogrodem. Jak sama nazwa projektu wskazuje: dom otwiera się na otoczenie, a granica między ogrodem a wnętrzem zostaje zatarta. Elementem nadającym rytm strukturze budynku - zarówno elewacjom, jak i rzutom kondygnacji, jest siatka słupów i belek, które pełnią funkcję porządkującą, ozdabiającą, oraz konstrukcyjną. Budynek wygląda w ten sposób oryginalnie i niepowtarzalnie. Wnętrze domu podzielono na część dzienną na parterze i sypialnie na poddaszu. Do wnętrza wchodzimy ładnym przedsionkiem, połączonym z garażem i kotłownią, wprost do holu otwierającego się na salon i od razu na ogród - dzięki pięknym przeszkleniom ogrodowej elewacji. Wspólne wnętrze salonu, jadalni, holu i kuchni ma ponad 70 m² - jest to piękna otwarta przestrzeń. Na parterze przewidziano także dodatkowy pokój - gabinet, oraz wc. W domu Otwarty 5 na poddaszu mamy trzy bardzo ładne sypialnie: apartament rodziców, z własną garderobą i łazienką, oraz dwie sypialnie dzieci z łazienką dostępną z holu. Na poddaszu mieści się dodatkowo pralnia. W domu mamy duże, ładne, nie udawane pokoje - wnętrze jest bardzo komfortowe jak na tę powierzchnię użytkową. Konstrukcja budynku jest dość prosta i łatwa w budowie. Otwarty 5 to budynek energooszczędny, dzięki zastosowaniu nowoczesnym materiałów i instalacji. Projekt domu Otwarty 5 będzie niedrogi i bezproblemowy w późniejszej eksploatacji. Pracownia posiada odbicie lustrzane projektu oraz kilka wersji: bazową (projekt domu Otwarty), pomniejszonej z garażem dwustanowiskowym (projekt domu Otwarty 2), pomniejszonej z garażem jednostanowiskowym (projekt domu Otwarty 3), ze zmienionym układem pomieszczeń (projekt domu Otwarty 4). Zapraszamy!
