- Tylko online
Masz pytania? Chciałbyś negocjować cenę
Zadzwoń! 577 575 011
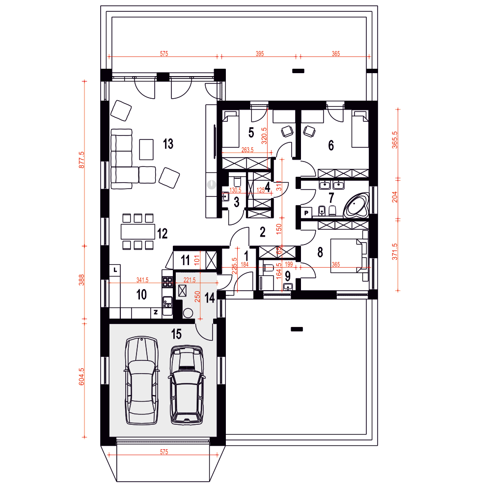
Projekt Cyrus III to propozycja nowoczesnego domu parterowego - to inna wersja popularnego projektu Cyrus, z naszej kolekcji. Cyrus III posiada modne i ciekawe wykończenia elewacji w drewnie i w klinkierze, o ciepłych kolorach. Projekt zaprojektowany został dla 4-osobowej rodziny. Ten wygodny dom posiada przestronny pokój dzienny z kominkiem i "szklaną ścianą" z możliwością wyjścia na ogród, który sąsiaduje z otwartą wygodną kuchnią oraz jadalnią gdzie z powodzeniem zmieści się duży rodzinny stół jadalny. Przy kuchni zaprojektowano wygodną spiżarnię na zapasy.Poprzez funkcjonalny podział pomieszczeń domu na strefy dzienną i nocną zapewnia, całej rodzinie została zapewniona wygoda o poczucie komfortu. W kolejnej części domu, strefie prywatnej, przewidziano trzy wygodne sypialnie, garderobę i dwie łazienki. Jedna z nich dostępna jest z dwuosobowej sypialni. W projekcie - na poddaszu, zaprojektowano miejsce do celów magazynowych. Projekt Cyrus III wyposażony został w przybudowany garaż na dwa samochody, znajdziemy w nim sporo miejsca na rowery, czy kosiarkę. Mały kąt nachylenia dachu podkreśla elegancki i efektowny charakter domu. Nowoczesne podcienie z modnymi ramami na elewacji, podkreślają elegancki wygląd domu.fundamenty: BETONOWE ściany zewnętrzne: PUSTAK CERAM. POROTHERM+STYROPIAN TERMO ORGANIKA ściany wewnętrzne: POROTHERM / CEGŁ.DZIURAWKA rodzaj stropu: TERIVA elewacje: TYNK STRUKTURALNY pokrycie dachu: DACHÓWKA CEM. lub CER.
