- Tylko online
Masz pytania? Chciałbyś negocjować cenę
Zadzwoń! 577 575 011
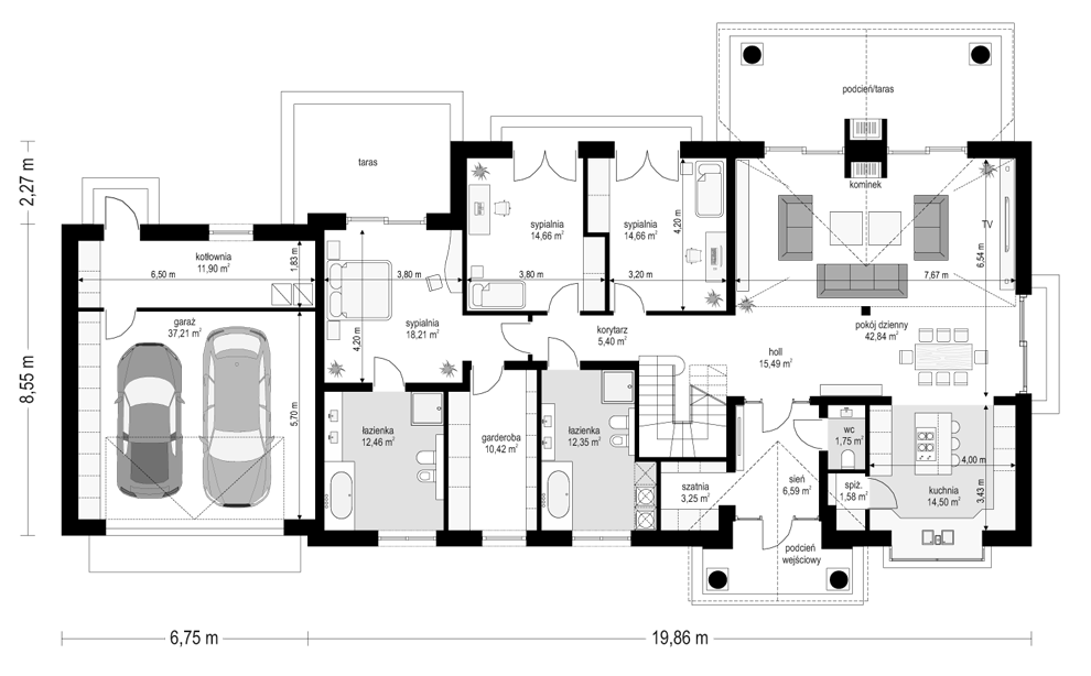
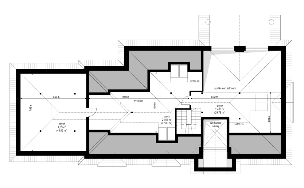
Projekt domu Willa parkowa C to projekt domu jednorodzinnego z cieszącej się popularnością serii projektów Willa parkowa. Dom został zaprojektowany w oparciu o sugestie Inwestorów, którym spodobała się stylistyka Willi parkowych, ale chcieliby mieć garaż z boku, nie wystający przed ścianę frontową - bądź to z przyczyn estetycznych, bądź to z powodu płytkiej działki . Bryła budynku jest więc obecnie podłużna, składa się z prostokątnej głównej części mieszkalnej i dobudowanej do niej - garażowo-gospodarczej. Architektonicznie projekt domu Willa parkowa C nawiązuje do polskiego dworku,oraz do podmiejskich amerykańskich willi. Klasyczna forma i detale współgrają tutaj z nowoczesnymi materiałami, technologiami i funkcjonalnością wnętrz. Do domu wchodzimy przez piękny łukowy podcień z kolumnami, zapraszający przez solidne drzwi z naświetlami do wnętrza. Przedsionek z podwyższonym łukowym sufitem jest pierwszą atrakcją. Następnie przechodzimy do otwartej przestrzeni dziennej, z pustką nad salonem i wielkimi podwyższonymi przeszkleniami otwierającymi salon na taras i ogród. Na parterze w części dziennej mamy wygodną kuchnię z wyspą i spiżarnią, pokój dzienny z jadalnią i częścią wypoczynkową, oraz hol z reprezentacyjnymi schodami na górę. Obok zaprojektowano dostępne z korytarza sypialnie domowników: apartament rodziców z własną łazienką i garderobą, oraz dwie sypialnie dzieci, łazienkę i pralnię. Część gospodarcza domu jest oddzielona od reszty wnętrza, co szczególnie Klienci budujący się poza miastem często doceniają. Nad parterem mieści się strych, który z łatwością można zaadaptować na poddasze użytkowe. Z poddasza przez antresolę mamy widok na salon poniżej. Dom Willa parkowa C jest bardzo wygodny i komfortowy. Stanowi idealną propozycję dla osób marzących o wygodnym życiu na parterze, na jednej kondygnacji, blisko ogrodu. Budynek zaprojektowano jako energooszczędny, stosując nowoczesne materiały i instalacje. Projekt domu Willa parkowa C nie ma trudnej konstrukcji - powinien być dość prosty w budowie. Zapraszamy do obejrzenia wszystkich projektów domów z serii Willa Parkowa: https://www.mgprojekt.com.pl/willa-parkowa, https://www.mgprojekt.com.pl/willa-parkowa-2, https://www.mgprojekt.com.pl/willa-parkowa-3, https://www.mgprojekt.com.pl/willa-parkowa-4, https://www.mgprojekt.com.pl/willa-parkowa-5, https://www.mgprojekt.com.pl/willa-parkowa-6, https://www.mgprojekt.com.pl/willa-parkowa-6-d, https://www.mgprojekt.com.pl/willa-parkowa-7, https://www.mgprojekt.com.pl/willa-parkowa-8-a, https://www.mgprojekt.com.pl/willa-parkowa-8-b, https://www.mgprojekt.com.pl/willa-parkowa-9, https://www.mgprojekt.com.pl/willa-parkowa-10, https://www.mgprojekt.com.pl/willa-parkowa-b, https://www.mgprojekt.com.pl/willa-parkowa-c, https://www.mgprojekt.com.pl/willa-parkowa-d.
