- Tylko online
Masz pytania? Chciałbyś negocjować cenę
Zadzwoń! 577 575 011
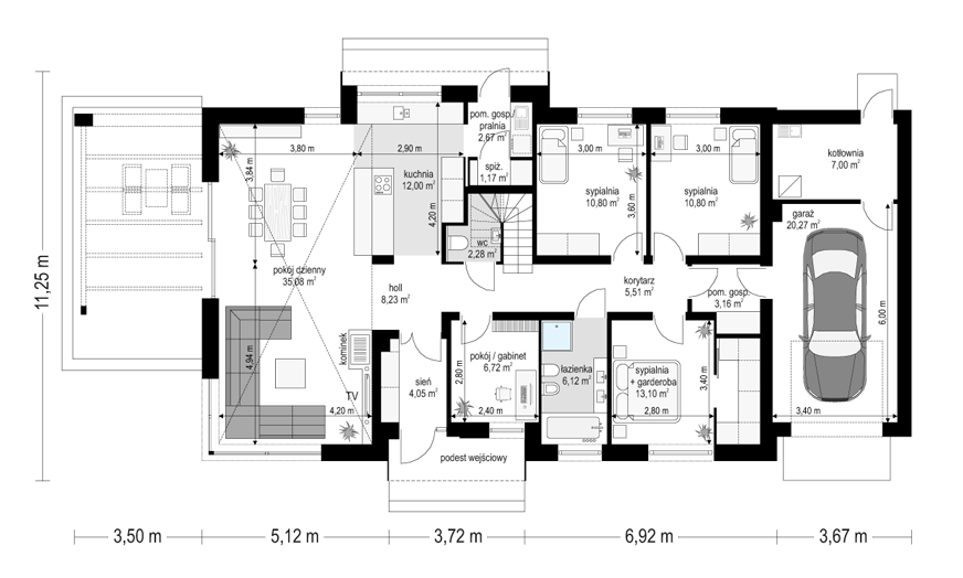
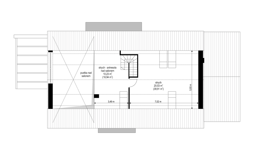
Projekt domu Wymarzony 9 to następny dom z serii projektów „Wymarzonych” z naszej pracowni. Budynek został zaprojektowany w modnej stylistyce domu-stodoły. Dom jest parterowy z poddaszem. Przykryty został dwuspadowym dachem o kącie nachylenia 35 stopni. Dach nie ma okapów, bryła jest maksymalnie prosta, nowoczesna, z dostawionymi od frontu i tyłu pudełkowymi zadaszeniami kryjącymi wejście i wykusz kuchni. W projekcie zastosowano ciekawe detale i materiały uatrakcyjniające wygląd zewnętrzny. Przede wszystkim charakter budynku tworzy okładzina klinkierowa na ścianach, połączona z szarymi wstawkami, szarą stolarką okienną i szaro – grafitową dachówką. Połączenie użytych materiałów i detali stworzyło udany efekt wizualny. Dom jest nowoczesny, prosty, a zarazem elegancji i reprezentacyjny. W projekcie domu Wymarzony 9 głównym detalem wyróżniającym elewację frontową jest część wejściowa, z podestem, ciekawym pudełkowym zadaszeniem i drzwiami wejściowymi z naświetlami. Od strony elewacji tylnej zabieg ten powtórzono w wykuszu kuchni. Niewątpliwie najciekawszy jest szczyt domu z oknem biegnącym przez całą wysokość elewacji, które doświetla salon z pustką i antresolą, otwierając wnętrze na taras z pergolą i ogród. Dom zaprojektowano w taki sposób, aby salon miał doświetlenie z trzech stron budynku, co pozwala lokalizować go na niekorzystnej działce - z wjazdem od południa, czy z ogrodem z boku. Projektując wnętrze staraliśmy się zmieścić wygodne cztery pokoje + salon, oraz wszystkie potrzebne pomieszczenia dodatkowe. Do domu wchodzimy wygodnym przedsionkiem wprost do części dziennej, z salonem, jadalnią i częściowo zamkniętą półwyspem kuchnią. Kuchnia połączona jest ze spiżarką, oraz pralnią z wyjściem gospodarczym na tył domu. Z drugiej strony domu mamy trzy sypialnie, w tym sypialnię rodziców z garderobą, łazienkę i dodatkowy pokój – gabinet lub extra sypialnię. Przez podwójne drzwi i dodatkowy korytarz dom łączy się z garażem i kotłownią. Nad parterem zaprojektowano poddasze z pustką nad salonem, antresolą ze schodami nad salonem, oraz z dodatkową przestrzenią strychu-poddasza, którą można pozostawić jako strych (magazyn), albo zamienić na dodatkowe pokoje użytkowe - wedle życzenia właściciela. Projekt domu Wymarzony 9 to komfortowy, wygodny dom o nowoczesnej i atrakcyjnej architekturze, przeznaczony dla cztero- pięcioosobowej rodziny. Budynek jest energooszczędny, ma prostą konstrukcję, będzie łatwy w budowie i tani w utrzymaniu. Zapraszamy do zapoznania się z pełną ofertą pracowni MG Projekt tej serii: Wymarzony, Wymarzony 2, Wymarzony 3, Wymarzony 4, Wymarzony 5, Wymarzony 6, Wymarzony 7, Wymarzony 8, Wymarzony 10, Wymarzony 11.
