- Tylko online
Masz pytania? Chciałbyś negocjować cenę
Zadzwoń! 577 575 011
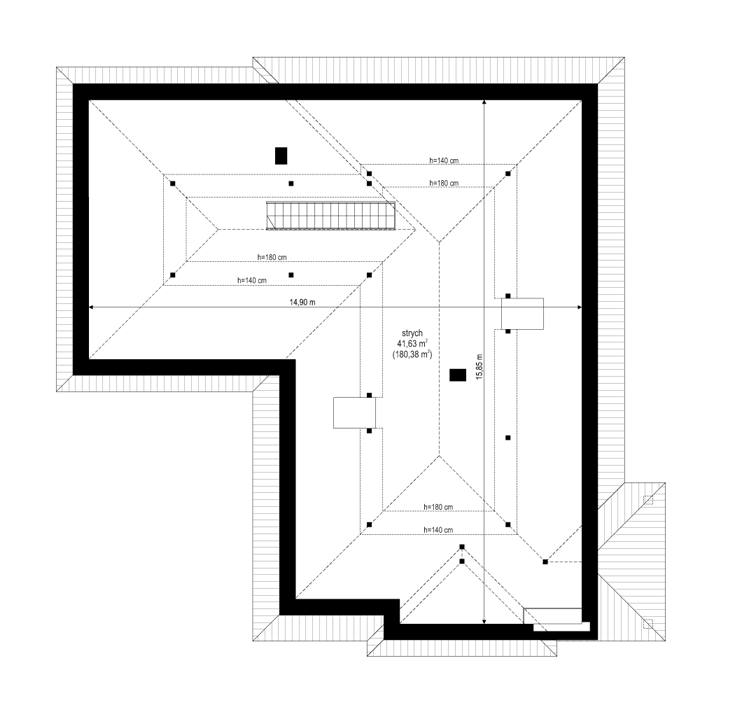
Projekt domu Sielanka to parterowy wygodny dom jednorodzinnego dla czteroosobowej rodziny, zakomponowany na planie litery „L”, przykrytego łagodnym wielospadowym dachem. Dzięki układowi wejścia i wrót garażowych tworzących wejściowy placyk - dziedziniec, dom można postawić na działce frontem lub bokiem do drogi. Dzięki temu projekt domu Sielanka będzie się świetnie nadawał zarówno na działkę z ogrodem z tyłu domu, jak i działkę z ogródkiem z boku, przy mniej korzystnym układzie działki względem słońca. Jednocześnie wejściowo-wjazdowy placyk zapewni komfortowe parkowanie autem przed garażem. Architektura domu utrzymana jest w spokojnej nowoczesnej stylistyce, z ładnymi detalami, dużymi przeszkleniami i grafitowym dachem kryjącym strych – poddasze. Do domu wchodzimy ciekawie zaakcentowanym podcieniem wejściowym do sieni z szatnią, połączoną z garażem i częścią gospodarczą domu. Z sieni przechodzimy do otwartej przestrzeni dziennej połączonego salonu z jadalnią i kuchnią. Salon z pięknymi przeszkleniami otwiera się na częściowo zadaszony taras i ogród. Kuchnia ze spiżarnią otwiera się narożnym oknem na front domu i wejście. W salonie zaprojektowano ścianę kominkowo – telewizyjną, oraz miejsce na narożne meble wypoczynkowe, a także wygodny stół jadalny. Pod zadaszeniem tarasu zmieście się komplet mebli ogrodowych. W części nocnej domu mamy trzy sypialnie z garderobami i szafami wbudowanymi i łazienkę, oraz schody na strych. Strych może być łatwo zaadaptowany na poddasze użytkowe z dodatkowym jednym –dwoma pokojami. Projekt domu Sielanka to doskonała propozycja dla Inwestorów planujących budowę niewielkiego ale komfortowego parterowego domu, z zapasem przestrzeni do wykorzystania nad parterem. Dom jest praktyczny, funkcjonalny i energooszczędny. Budynek ma prostą konstrukcję i bez kłopotu da się go wybudować za rozsądne pieniądze. Zapraszamy do zapoznania się ze wszystkimi projektami z serii Sielanka: projekt domu Sielanka 2, projekt domu Sielanka 2B, projekt domu Sielanka 3, projekt domu Sielanka 4.
