- Tylko online
Masz pytania? Chciałbyś negocjować cenę
Zadzwoń! 577 575 011
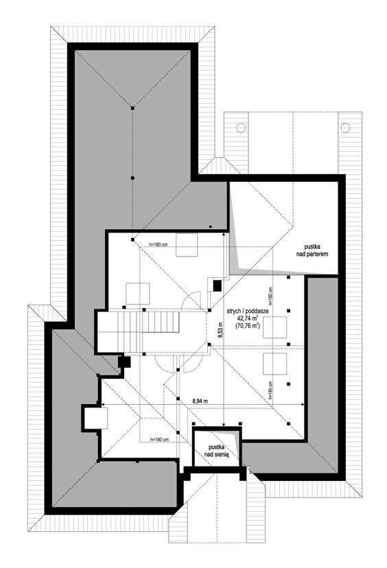
Projekt domu Dom na Parkowej 7C to kolejny projekt z cieszącej się popularnością serii projektów: Dom na Parkowej. Budynek jest elegancką reprezentacyjną willą o klasycznej architekturze, urozmaiconą wieloma ozdobnymi detalami podkreślającymi styl. Dom został zaprojektowany na planie prostokąta, z dobudowanymi bryłami garażu i sypialni od strony ogrodu. Front domu podkreśla piękny podcień wejściowy z szerokimi drzwiami z naświetlami bocznymi i łukowym naświetlem górnym zakończonym kolebkowym sufitem. Od strony ogrodu głównym akcentem i ozdobą jest podcień zadaszający fragment tarasu, z oknem salonu z łukowym naświetlem, łączącym wnętrze z otaczającym ogrodem. Wnętrze domu zaprojektowano w taki sposób aby cała funkcja mieszkalna zmieściła się na parterze budynku, dając mieszkańcom komfort życia na jednym poziomie. Poza parterem projekt przewiduje przestrzeń strychową, która może też służyć jako poddasze użytkowe. Bez kłopotu można tutaj urządzić dodatkowe 2- 3 pokoje. Poddasze może też pozostać otwartym studiem. W projekcie przewidziana została pustka nad salonem, łącząca poddasze z salonem przez antresolę. Pustka może być też zamknięta ścianami - gdy zdecydujemy pozostawić górną przestrzeń jako strych. Do domu wchodzimy reprezentacyjnymi drzwiami do dużego przedsionka z szatnią, a stamtąd do holu i otwartej przestrzeni dziennej salonu, jadalni i kuchni. Kuchnia jest częściowo schowana za ścianą spiżarni i zabudową mebli kuchennych. Centralnym elementem salonu jest środkowa ściana kominkowo – telewizyjna. Podniesiony sufit salonu, połączenie z antresolą poddasza, oraz piękne wysokie okno otwierające wnętrze na taras - dodają atrakcyjności wnętrzu. W części nocnej mamy trzy sypialnie z łazienką. Sypialnia państwa domu ma dwie garderoby. Dopełnieniem planu parteru jest duży garaż i pomieszczenie gospodarcze. Dom na Parkowej 7C to wygodna podmiejska willa o nieprzesadzonej powierzchni użytkowej, zapewniająca mieszkańcom maksymalny komfort życia na parterowej przestrzeni z możliwością wykorzystania dodatkowego poddasza. Dom zaprojektowano jako energooszczędny - posiada bardzo dobre izolacje przegród oraz wyposażony jest w nowoczesne instalacje. Będzie niedrogi w użytkowaniu, a dzięki nieskomplikowanej konstrukcji - nietrudny w budowie. Istnieje możliwość zastąpienia stropu żelbetowego nad parterem i tradycyjnej więźby dachowej konstrukcją z wiązarów prefabrykowanych. Zapraszamy do zapoznania się z pełną ofertą pracowni MG Projekt: projekt domu Dom na Parkowej, projekt domu Dom na Parkowej 2, projekt domu Dom na Parkowej 3, projekt domu Dom na Parkowej 4, projekt domu Dom na Parkowej 5, projekt domu Dom na Parkowej 6, projekt domu Dom na Parkowej 7 A, projekt domu Dom na Parkowej 7 B
