- Tylko online
Masz pytania? Chciałbyś negocjować cenę
Zadzwoń! 577 575 011
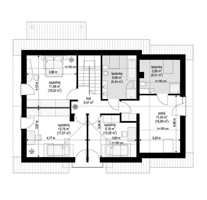
Projekt domu Narcyz 3 to projekt parterowy z poddaszem użytkowym z serii domów Narcyz. Ideą jaka przyświecała stworzeniu projektów z tej serii było uzyskanie prawdziwego domu - o takim kształcie i funkcji, które większość z nas automatycznie ma w głowie wyobrażając sobie dom. Takie domy rysują nasze dzieci, takie domy są głęboko w naszej pamięci. Postanowiliśmy połączyć tradycyjną formę budynku z dwuspadowym dachem z nowoczesnymi rozwiązaniami funkcjonalno - materiałowymi, tak aby jego architektura była maksymalnie ponadczasowa, ładnie się starzała, a jednocześnie żeby nawiązywała do obecnie obowiązującej mody. Wygląd i wnętrze projektu domu Narcyz 3 Projekt domku Narcyz 3 to parterowy dom z poddaszem użytkowym, zbudowany na planie prostokąta, przykryty dwuspadowym dachem. Do głównej bryły projektu Narcyz 3 dobudowana jest część garażowa z poddaszem. W projekcie domku Narcyz 3 symetryczna proporcjonalna elewacja frontowa ozdobiona jest podcieniem wejściowymi i szeroką lukarną z balkonem. Urozmaiceniem elewacji tylnej projektu Narcyz 3 jest zadaszenie tarasu, oraz szerokie przesuwne drzwi balkonowe salonu.Wnętrze parteru projektu Narcyz 3 to 40-metrowa połączona przestrzeń salonu, holu i kuchni, reprezentacyjne schody na poddasze, oraz dwa dodatkowe pokoje na parterze (gabinet do pracy, lub np. sypialnia seniora), oraz łazienka, garaż i kotłownia. Lokalizacja kotłowni w projekcie domu Narcyz 3 pozwala na instalację zarówno kotła gazowego lub pompy ciepła, jak i kotła na paliwo stałe. W projekcie domu Narcyz 3 na poddaszu, mimo skosów dachu, zmieściły się wygodne cztery pokoje i dwie łazienki (pokój nad garażem ma własną oddzielną łazienkę z prysznicem). Powierzchnię użytkową na poddaszu w projekcie domu Narcyz 3 można powiększyć podnosząc nieco ściany kolankowe. Projekt Narcyz 3 ma zwartą prostą bryłę, budynek nie jest trudny w budowie, a nowoczesne rozwiązania instalacyjne i bardzo dobre izolacje sprawiają, że jest budynkiem energooszczędnym i tanim w utrzymaniu. Projekt domku Narcyz 3 to idealna propozycja dla osób, które nie chcą ryzykować, chcą postawić na sprawdzoną od wielu lat architekturę, bez udziwnień i potencjalnych kłopotów, tak aby mieć kontrolę nad procesem budowy, a przede wszystkim nad kosztami budowy. Projekt domu Narcyz 3 to po prostu śliczny zgrabny dom jednorodzinny, który doskonale wpasuje się w każde otoczenie. Pracownia architektoniczna MG Projekt dysponuje również projektem domku Narcyz 3 w odbiciu lustrzanym oraz wersjami wariantowymi budynku: projekt domu Narcyz, projekt domu Narcyz 2, projekt domu Narcyz 4.
