- Tylko online
Masz pytania? Chciałbyś negocjować cenę
Zadzwoń! 577 575 011
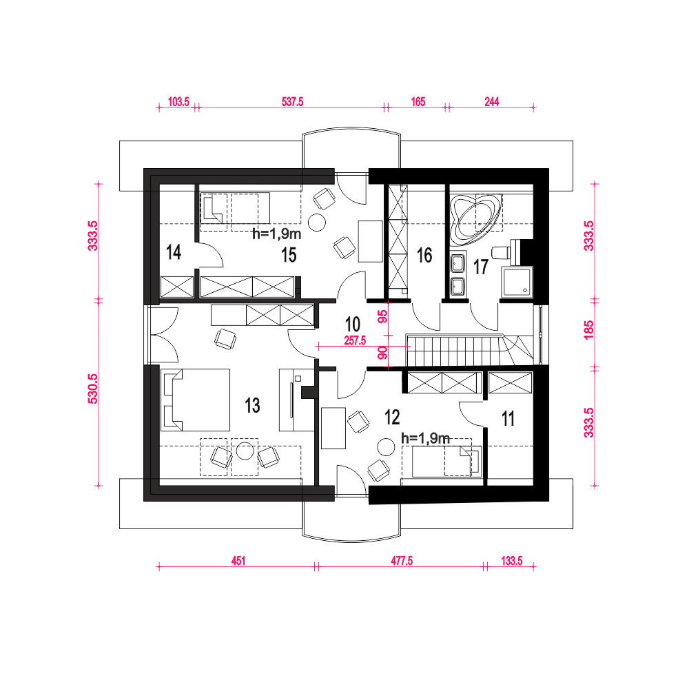
Dom Dla Ciebie 10 bez garażu to większa, poszerzona wersja popularnego projektu Dom Dla ciebie 1 - to projekt domu o często wyszukiwanej powierzchni około 140 m2. Tak jak pozostałe projekty z tej serii Dom Dla Ciebie 10 zaprojektowany został z zachowaniem podziału na strefy użytkowe: ogólnie dostępną na parterze i prywatną na poddaszu. Na parterze przewidziano wiatrołap z wnękowymi szafami, hol, kuchnię od strony ogrodu, salon z kominkiem doświetlony od frontu budynku, jadalnię oraz pokój zlokalizowany od frontu do wykorzystania np. jako gabinet. Z jadalni i z salonu możemy dostać się na zewnętrzne tarasy. Z holu dostaniemy się do niedużej łazienki z prysznicem oraz do kotłowni. Na poddasze dostaniemy się jednobiegowymi schodami. Mamy tu przewidziane trzy ustawne i dobrze doświetlone pokoje - każdy z własnym balkonem. Jest tu też ogólnie dostępną łazienkę z narożną wanną i prysznicem. Poddasze wygospodarowane jest pod dwuspadowym dachem zaprojektowanym na tradycyjnej więźbie dachowej opartej na ściance kolankowej o wysokości około 1m. Projekt domu Dom Dla Ciebie 10, jest idealną propozycją dla szukających projektu domu tradycyjnego o stylowej architekturze, dobrze zaprojektowanej funkcji i o dobrych energooszczędnych parametrach.fundamenty: BETONOWE ściany zewnętrzne: POROTHERM+STYROPIAN TERMO ORGANIKA rodzaj stropu: TERIVA I elewacje: TYNK STRUKTURALNY, OKŁADZINA KLINKIEEROWA pokrycie dachu: DACHÓWKA CEMENTOWA, CERAMICZNA lub BLACHA DACHÓWKO PODOBNA
