- Tylko online
Masz pytania? Chciałbyś negocjować cenę
Zadzwoń! 577 575 011
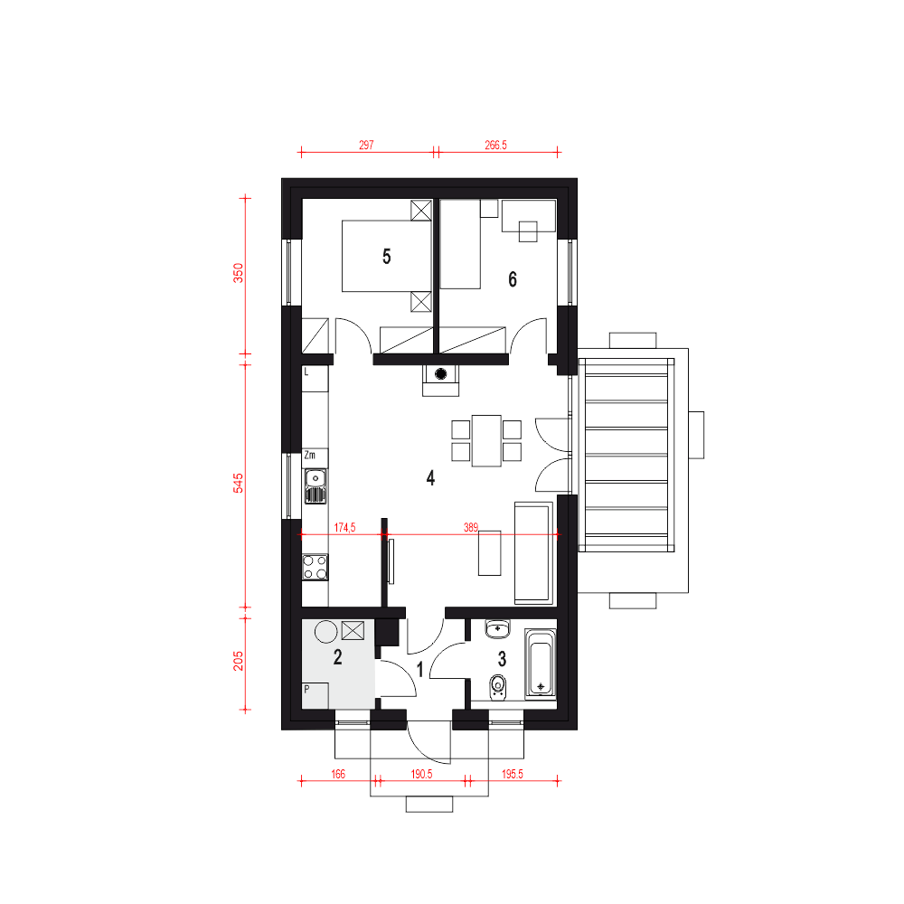
Iwo II - niewielki dom parterowy o prostej konstrukcji.fundamenty: BETONOWE ściany zewnętrzne: POROTHERM+STYROPIAN TERMO ORGANIKA ściany wewnętrzne: POROTHERM strop nad parterem i konstrukcja dachu:: wiązary prefabrykowane MITEK elewacje: TYNK STRUKTURALNY, OKŁADZINA KAMIENNA pokrycie dachu: BLACHA NA RĄBEK STOJĄCY
