- Tylko online
Masz pytania? Chciałbyś negocjować cenę
Zadzwoń! 577 575 011
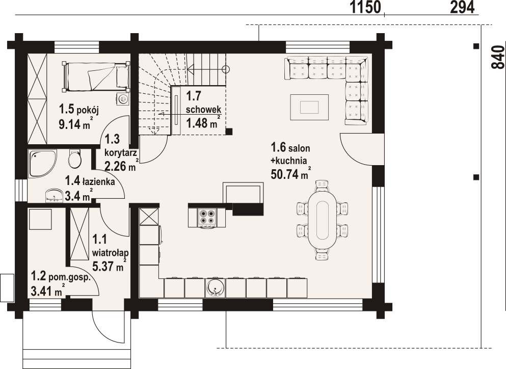
Dom z bali. Na parterze salon z kuchnią, kominkiem, wyjściem na zadaszony taras i schodami na poddasze. Pod schodami schowek. Pokój, łazienka, korytarz, wiatrołap, pomieszczenie gospodarcze. Na poddaszu trzy pokoje, łazienka, komunikacja. Zwarta bryła budynku oraz dach dwuspadowy sprzyjają szybkiej i taniej budowie oraz niskim kosztom eksploatacji.
