- Tylko online
Masz pytania? Chciałbyś negocjować cenę
Zadzwoń! 577 575 011
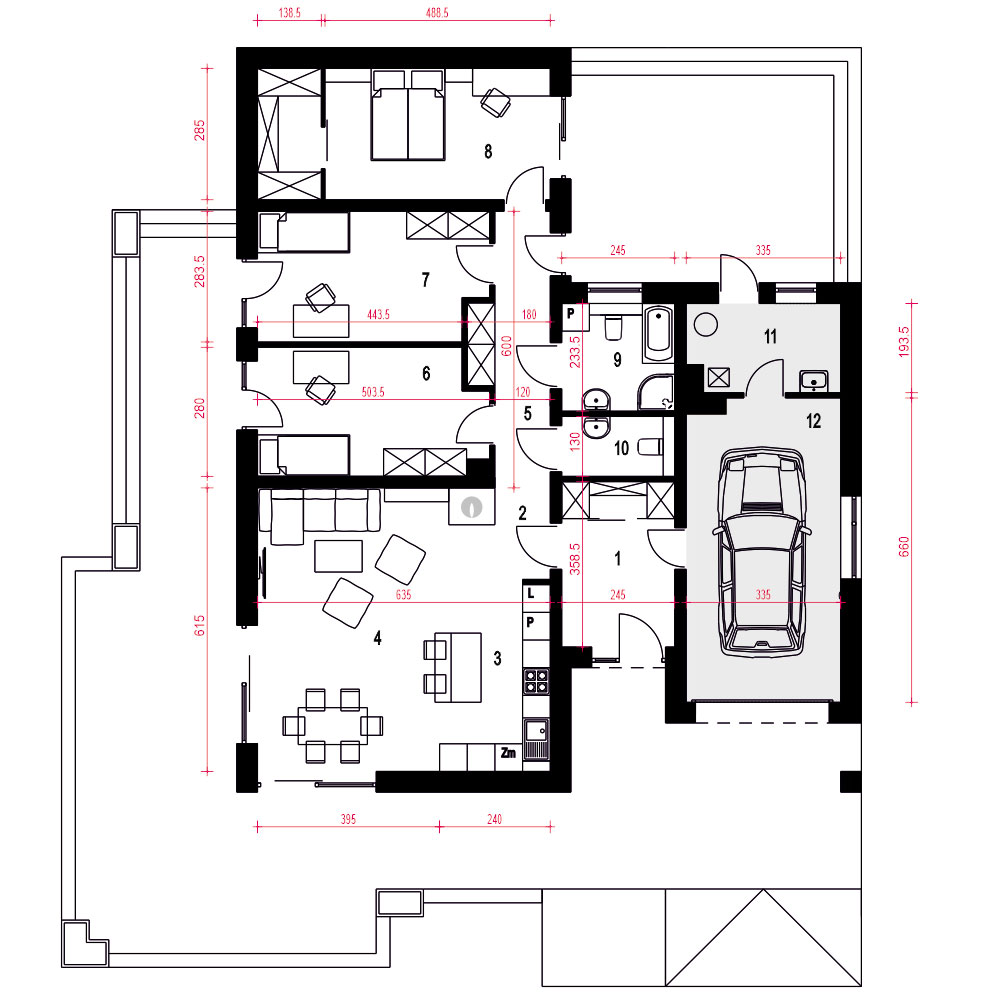
Projekt Srebrna II to nowoczesny dom dla 4-osobowej rodziny, przeznaczony na działki z wjazdem od południa. Konstrukcja oparta jest na murowanych pustakach ceramicznych i prefabrykowanych wiązarach dachowych. Budynek ma dach nachylonymi pod kątem 30°. Wejście prowadzi przez wiatrołap z garderobą, garażem i pomieszczeniem technicznym. Strefa mieszkalna obejmuje salon, kuchnię i jadalnię. Korytarz prowadzi do sypialni, łazienki z natryskiem oraz małego WC. Duża sypialnia ma garderobę, którą można przekształcić w łazienkę. Z salonu, jadalni i sypialni można wyjść na taras, a główna sypialnia ma zaciszny taras z drugiej strony domu. Elewacja łączy drewno z bielą a ciemnoszary dach nadaje charakteru. Ogród wokół domu dopełnia całości.fundamenty: BETONOWE ściany zewnętrzne: POROTHERM+STYROPIAN TERMO ORGANIKA ściany wewnętrzne: POROTHERM rodzaj stropu: DREWNIANY, MITEK elewacje: TYNK STRUKTURALNY, OKŁADZINA DREWNOPODOBNA pokrycie dachu: DACHÓWKA CERAMICZNA
