- Tylko online
Masz pytania? Chciałbyś negocjować cenę
Zadzwoń! 577 575 011
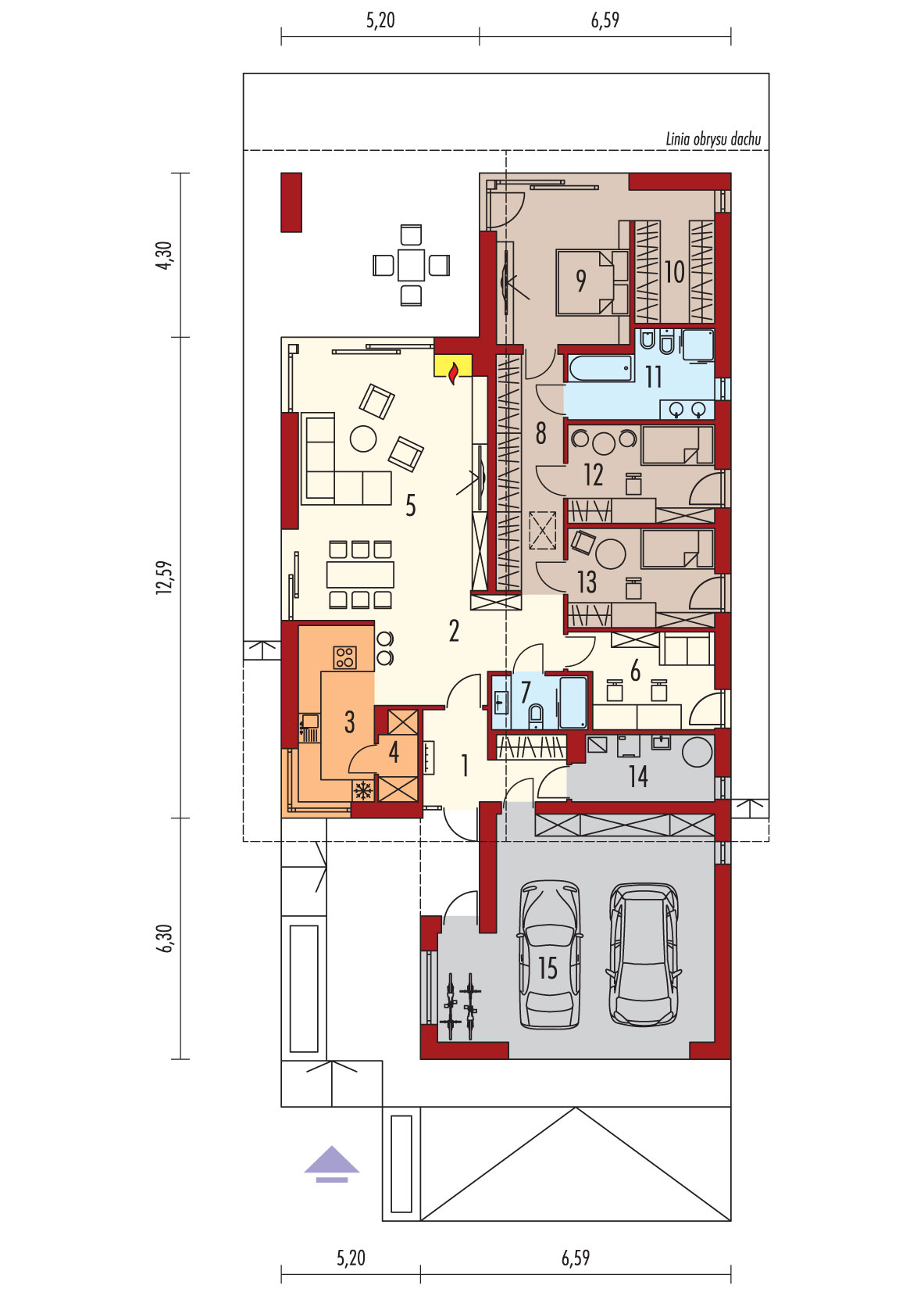
Charakterystyka: Dom parterowy, niepodpiwniczony z garażem dwustanowiskowym Przeznaczenie: Dom dla 3-4-osobowej rodziny Technologia i konstrukcja: Ściany zewnętrzne: murowane, dwuwarstwowe, beton komórkowy firmy H+H 24 cm, ocieplenie styropianem Termo Organika 20cmŚciany wewnętrzne: ścianki działowe murowane, beton komórkowy H+H 12 cmStrop: gęstożebrowy Teriva, ocieplenie wełna mineralna Isover 30 cmDach: konstrukcja drewniana, dachówka ceramiczna płaska Bergamo firmy Röben Rozwiązania instalacyjne: Ogrzewanie: kocioł gazowy kondensacyjny firmy Viessmann, rozprowadzenie ciepła: grzejniki płytowe firmy PurmoWentylacja: grawitacyjnaDodatkowo: stacja uzdatniania wody firmy Viessmann OZE: system solarny firmy ViessmannWykończenie: Elewacje: tynk cienkowarstwowy mineralny w kolorze białym TO-WH002 z palety firmy Termo Organika, okładzina drewniana w pionowym układzie desek Stolarka: drewniana, PVC lub aluminiowa, drzwi wejściowe i brama garażowa firmy HörmannWersje w serii Daniel VIII - zapytaj o dostępność: - Daniel VIII G2 ENERGO PLUS – inne wykończenie elewacji, wentylacja mechaniczna, pompa ciepła- wszystkie wersje o takim samym układzie funkcji - odbicie lustrzane do każdej wersjiWszystkie wersje domów możliwość w dwóch standardach/wariantach instalacyjnych: - ENERGO: kocioł gazowy kondensacyjny, grzejniki, wentylacja grawitacyjna, OZE: kolektory słoneczne - ENERGO PLUS: pompa ciepła, ogrzewanie podłogowe, wentylacja mechaniczna, OZE: panele fotowoltaiczne Istnieją techniczne możliwości wykonania zmian: - podpiwniczenia budynku - wykonania budynku w technologii szkieletowej - dokonania zmian funkcjonalnych wg indywidualnych wymagań
