- Tylko online
Masz pytania? Chciałbyś negocjować cenę
Zadzwoń! 577 575 011
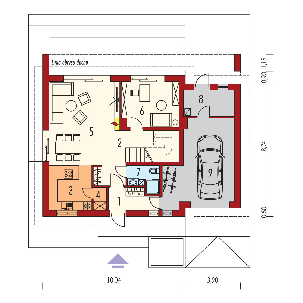
Charakterystyka: Dom parterowy z poddaszem użytkowym, niepodpiwniczony, z garażem jednostanowiskowymPrzeznaczenie: Dom dla 3-4-osobowej rodziny Technologia i konstrukcja:Ściany zewnętrzne: murowane, dwuwarstwowe, beton komórkowy firmy Solbet 24 cm, ocieplenie wełna mineralna typ Fasoterm 35 firmy Isover 20 cmŚciany wewnętrzne: nośne i działowe murowane, beton komórkowy firmy Solbet 24 cm i 12 cmStrop: międzypiętrowy gęstożebrowy Teriva, ocieplenie wełna mineralna firmy Isover 30 cmDach: konstrukcja drewniana, ocieplenie wełna mineralna Isover 30 cm, dachówka ceramiczna płaska Bergamo firmy Röben,Schody: schody wewnętrzne drewnianeInne: Dom spełnia standardy Grupy Saint-Gobain; Marka Isover, Rigips i Weber zapewniają najwyższą jakość wbudowanych produktów: systemy ociepleń, okładziny ścienne i sufitowe, paroizolacje, systemy podłogowe, zaprawy, kleje, hydroizolacjeRozwiązania instalacyjne:Ogrzewanie: kocioł gazowy kondensacyjny firmy Viessmann, rozprowadzenie ciepła: grzejniki firmy PurmoWentylacja: grawitacyjnaOZE: kolektory słoneczne firmy ViessmannDodatkowo: stacja uzdatniania wody firmy Viessmann Wykończenie:Elewacje: tynk cienkowarstwowy mineralny w kolorze białym TO-PA 001 z palety firmy Termo Organika Weber, okładzina - system elewacji wentylowanej: deski włóknocementowe Cedral w kolorze CL104Stolarka: drewniana, PVC lub aluminiowa, drzwi tarasowe podnoszono-przesuwne typu HS aluminiowo-drewniane Innowiev firmy Fakro, drzwi wejściowe i brama garażowa firmy Hörmann, rolety zewnętrzne w systemie QuadBox firmy BeCleverOkna połaciowe: rozwiązania technologiczne i wyłaz dachowy firmy FakroOtoczenie: kostka betonowa i płyty tarasowe firmy Libet, system tarasowy ProDeck - deska kompozytowa Terra w kolorze orzech, meble ogrodowe firmy B&B Italia Wersje domów w serii Iga – zapytaj o dostępność:- Iga II G1 – wersja podstawowa, standardowe instalacje: kocioł gazowy kondensacyjny, wentylacja grawitacyjna, dom z rozwiązaniami materiałowo-technologicznymi Grupy Saint-Gobain- IGA III G1 ENERGO PLUS reco - instalacje energooszczędne firmy Vaillant: pompa ciepła, wentylacja mechaniczna z rekuperacją, system fotowoltaiczny oraz ogrzewanie podłogowe firmy Purmo, podobny układ funkcjonalny, inne wykończenie elewacji, dom z rozwiązaniami materiałowo-technologicznymi Grupy Saint-Gobain- wszystkie wersje o podobnym układzie funkcji oraz z inną propozycją wykończenia elewacji- wszystkie wersje z trzema wariantami garaży: bez garażu, z garażem jedno- i dwustanowiskowym- odbicie lustrzane do każdej wersjiIstnieją techniczne możliwości wykonania zmian:- podpiwniczenia budynku- wykonania budynku w technologii szkieletowej- zbliźniaczenia lub wykonania domu dwulokalowego- dokonania zmian funkcjonalnych wg indywidualnych wymagań
