- Tylko online
Masz pytania? Chciałbyś negocjować cenę
Zadzwoń! 577 575 011
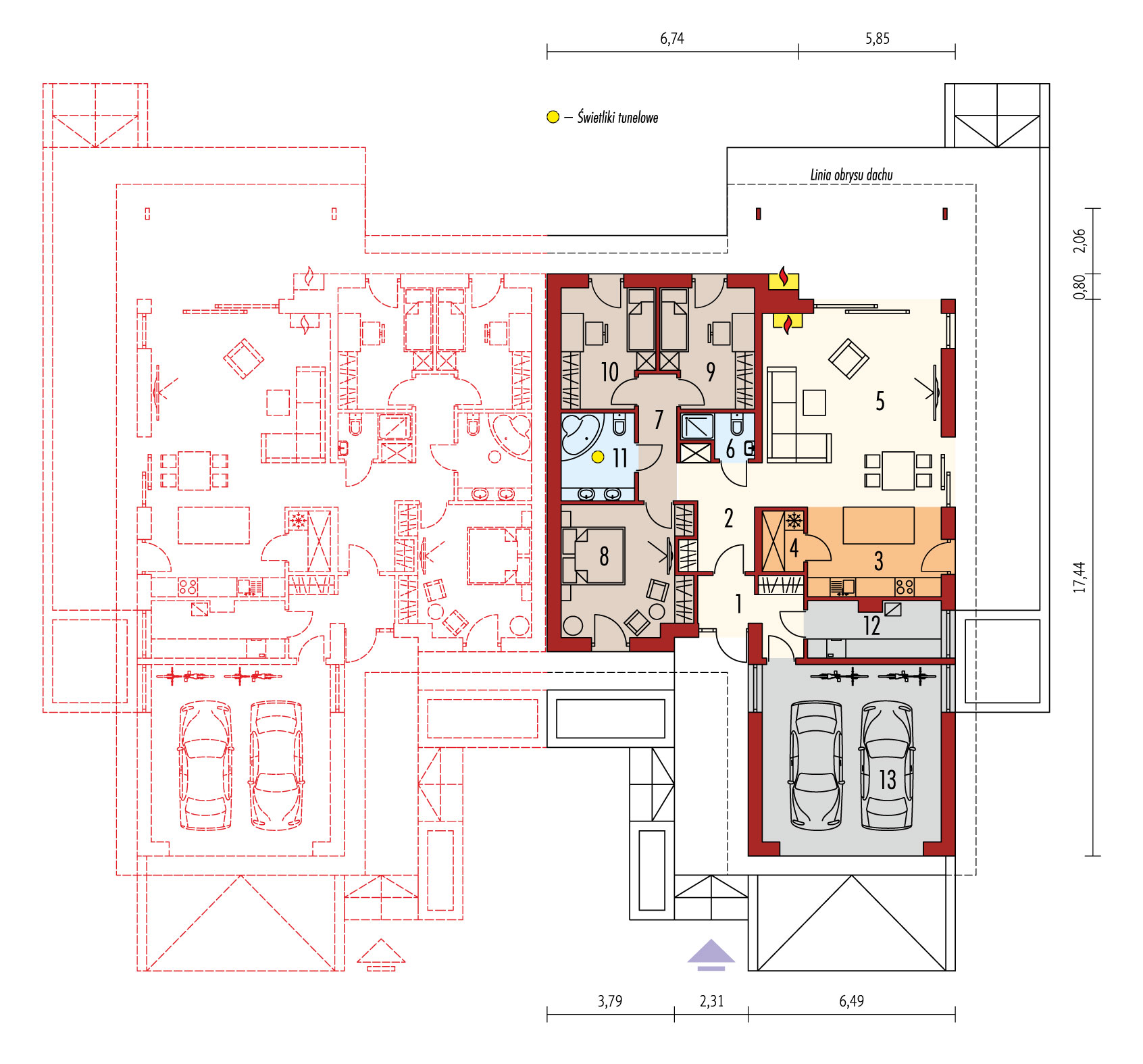
Powierzchnie i pozostałe dane liczbowe podano dla pojedynczego domu (połowa bliźniaka). Koszty budowy dotyczą pojedynczego domu (połowa bliźniaka). Cena dokumentacji technicznej obejmuje obydwa domy.Charakterystyka: Dom jednorodzinny w zabudowie bliźniaczej, parterowy, niepodpiwniczony, każdy segment z garażem dwustanowiskowym Przeznaczenie: Każdy segment dla 3-4-osobowej rodziny Technologia i konstrukcja: Ściany zewnętrzne: murowane, dwuwarstwowe, beton komórkowy firmy H+H 24 cm, ocieplenie styropian Termo Organika 20 cm Ściany wewnętrzne: nośne i działowe murowane, beton komórkowy firmy H+H 24 cm i 12 cm Strop: gęstożebrowy Teriva, ocieplenie wełna mineralna Isover 30 cm Dach: konstrukcja drewniana, dachówka ceramiczna płaska Bergamo firmy Röben, więźba dachowa dostępna również w systemie prefabrykacji drewnianejRozwiązania instalacyjne: Ogrzewanie: kocioł gazowy kondensacyjny firmy Viessmann, rozprowadzenie ciepła: grzejniki firmy Purmo Wentylacja: grawitacyjna OZE: kolektory słoneczneWykończenie: Elewacje: tynk cienkowarstwowy mineralny w kolorze białym TO-PA001 i grafitowym TO-GY011 z palety firmy Termo Organika, okładzina drewniana w pionowym układzie desek Stolarka: drewniana, PVC lub aluminiowa, rolety zewnętrzne w systemie CleverBox firmy BeClever, drzwi wejściowe i brama garażowa firmy Hörmann, świetliki tunelowe firmy Velux Pobierz ekspercki poradnik VELUX i dowiedz się jak wybrać okna dachoweOtoczenie: kostka betonowa i płyty tarasowe firmy Libet, system tarasowy ProDeck - deska kompozytowa Terra w kolorze orzechWersje domów w serii Simon - zapytaj o dostępność: - Simon – dom z poddaszem do adaptacji, 3 sypialnie, dach o kącie nachylenia 30° - Simon II – dom z poddaszem użytkowym, 3 sypialnie + gabinet, dach o kącie nachylenia 35° - Simon III – dom parterowy, 4 sypialnie, dach o kącie nachylenia 25° - Simon IV – dom parterowy, 3 sypialnie, dach o kącie nachylenia 25° - Simon (mały) – dom z poddaszem do adaptacji, mniejsza powierzchnia użytkowa, 3 sypialnie, dach o kącie nachylenia 35° - Simon III (wiązary) – system suchej zabudowy ścian działowych Rigips, wiązary prefabrykowane, rozwiązania materiałowo-technologiczne Grupy Saint-Gobain, układ funkcji jak w domu Simon III G2, dom parterowy, 4 sypialnie, dach o kącie nachylenia 25° - Simon IV (bliźniak) – dom parterowy w zabudowie bliźniaczej, 3 sypialnie, dach o kącie nachylenia 25° - Simon 01 (dwulokalowy) – dom z dwoma mieszkaniami, z poddaszem do adaptacji, dach o kącie nachylenia 30° – wszystkie wersje o podobnym układzie funkcji oraz z inną propozycją wykończenia elewacji – wszystkie wersje z trzema wariantami garaży: bez garażu, z garażem jedno- i dwustanowiskowym (wyjątek: dom dwulokalowy – tylko w wariancie bez garażu) – odbicie lustrzane do każdej wersjiWszystkie wersje domów możliwe w dwóch standardach/wariantach instalacyjnych: - ENERGO: kocioł gazowy kondensacyjny, grzejniki, wentylacja grawitacyjna, OZE: kolektory słoneczne - ENERGO PLUS: pompa ciepła, ogrzewanie podłogowe, wentylacja mechaniczna, OZE: kolektory słoneczne lub panele fotowoltaiczne Istnieją techniczne możliwości wykonania zmian:– podpiwniczenia budynku– zmiany kąta nachylenia dachu do 30° lub 35° i adaptacji poddasza na cele mieszkalne– wykonania budynku w technologii szkieletowej – dokonania zmian funkcjonalnych wg indywidualnych wymagań
