Informujemy, iż nasz sklep internetowy wykorzystuje technologię plików cookies a jednocześnie nie zbiera w sposób automatyczny żadnych informacji, z wyjątkiem informacji zawartych w tych plikach (tzw. „ciasteczkach”).

Talia bliźniak BL1

Lustrzane odbicie
  • Tylko online

Dane techniczne

powierzchnia
247.4 m²
wysokość
6.8 m
kąt dachu
3 °
szerokość działki
24 m
Liczba pokoi
10
Powierzchnia zabudowy
226
kondygnacje
piętrowe
garaż
z garażem 1 st.
dach
dach płaski
konstrukcja
murowane
zabudowa
domy bliźniacze
piwnica
bez piwnicy
dostępne odbicie lustrzane
Tak
Pow. użytkowa
247.4 m²
długość działki
23.8 m
Liczba łazienek
4
Powierzchnia dachu
249.8 m²

Opis projektu

Poniższy opis odnosi się do jednego segmentu: Talia to nowoczesny, funkcjonalny dom rodzinny, dostępny jako wolnostojący lub w zabudowie bliźniaczej. Jego kompaktowa forma pozwala na posadowienie na wąskich działkach, co czyni go atrakcyjnym dla deweloperów. Parter obejmuje wiatrołap z wejściem do pomieszczenia gospodarczego i garażu, garderobę pod schodami, małą łazienkę, pokój oraz przestronną strefę dzienną z kuchnią, jadalnią i salonem. Garaż łączy się z częścią mieszkalną przez pomieszczenie techniczne. Na piętrze znajdują się trzy sypialnie, duża łazienka oraz wnęki na pralkę i suszarkę. Każda sypialnia ma dostęp do balkonu. Zielone tarasy nad garażem i pokojem na parterze podkreślają nowoczesny, ekologiczny charakter domu, który doskonale wpisuje się w estetykę współczesnych osiedli.

Rzuty

Parter
1. wiatrołap
4,1 m2
2. hol
5,5 m2
3. schody
3,9 m2
4. łazienka
3,3 m2
5. pokój
10,8 m2
6. salon + jadalnia
24,1 m2
7. kuchnia
8,1 m2
8. pom. gosp. + c.o*
5,5 m2
9. garaż*
18,4 m2
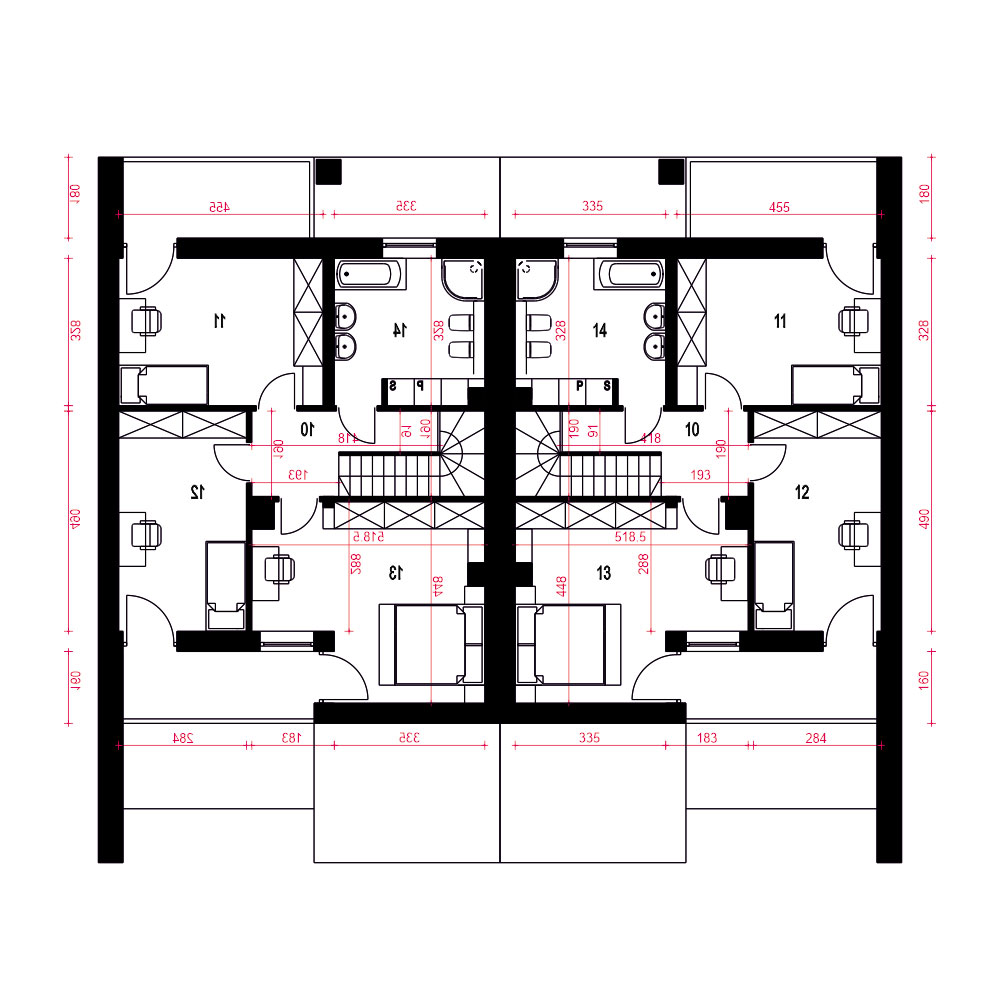
Piętro
10. hol
5,6 m2
11. pokój
14,7 m2
12. pokój
13,7 m2
13. pokój
19,6 m2
14. łazienka
10,6 m2

O autorze projektu Talia bliźniak BL1

9 982 zł

Tylko u nas możesz negocjować cenę!
Skorzystaj z tej możliwości.

Lustrzane odbicie: dostępne.

Masz dodatkowe pytania?
Zadzwoń lub zamów rozmowę.

Zamów rozmowę

Pomożemy Ci dopasować do twoich potrzeb mymarzony projekt, wpisz swój numer telefonu nasz konsultant oddzwoni.

Negocjuj cenę projektu Talia bliźniak BL1

Wersja projektu:

Zapytaj pytanie o projekt Talia bliźniak BL1

Wersja projektu:

Oceny i komentarze

Napisz swoją opinię