- Tylko online
Masz pytania? Chciałbyś negocjować cenę
Zadzwoń! 577 575 011
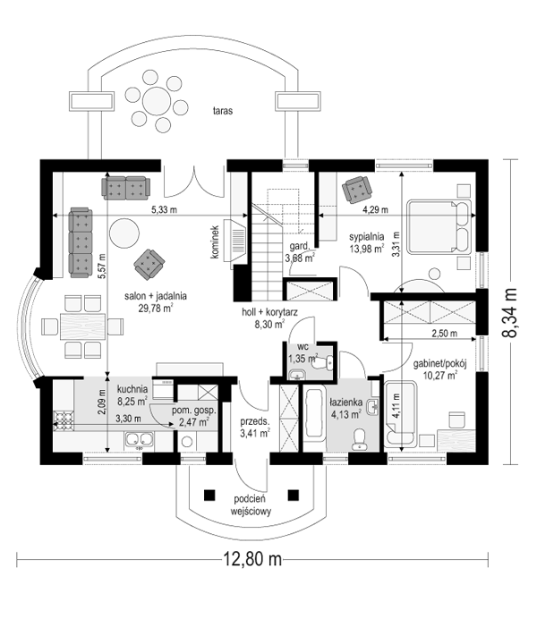
Projekt domu Gargamel to dom jednorodzinny nawiązujący do formy i stylistyki dworku polskiego. Wewnątrz kryje nowoczesny układ wnętrz dla 4- 5-osobowej rodziny. Budynek posiada czterospadowy dach, front wejściowy z kolumnami czy cokół z boniowaniem rozszerzającym się ku dołowi nadają bryle powagi i solidności. Wnętrze domu Gargamel tworzą wygodny salon z wyjściem na taras, aneks jadalny z pięknym łukowym wykuszem, częściowo otwarta kuchnia z bardzo przydatnym pomieszczeniem gospodarczym, oraz w drugim skrzydle domu dwa pokoje z łazienką i garderobą. Na poddaszu dwie sypialnie z łazienką. Poddasze można wykończyć w drugim etapie budowy. Dom Gargamel dostępny jest w odbiciu lustrzanym.
