- Tylko online
Masz pytania? Chciałbyś negocjować cenę
Zadzwoń! 577 575 011
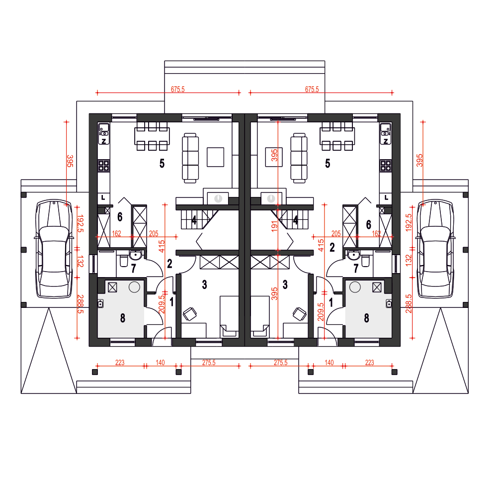
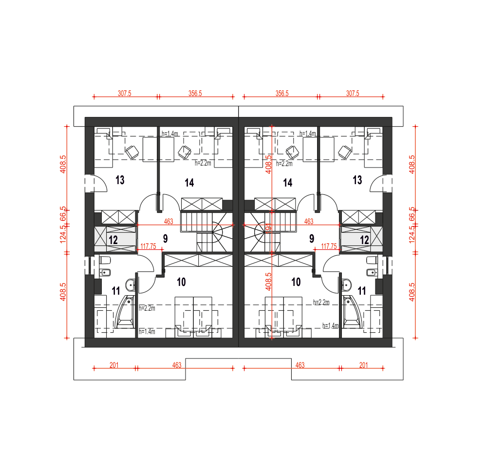
(Uwaga: projekty typu bliźniak oferujemy jako domy dwulokalowe, projekt można zamówić również w zabudowie bliźniaczej) Agat II A-BL2 to połączone dwa sementy od strony klatek schodowych. Projekt wpisuje się idealnie w ofertę budynków tanich i ekonomicznych w budowie i w eksploatacji, co udaje się osiągnąć poprzez optymalnie zaprojektowaną funkcję i zwartą bryłę.Opis poniżej dotyczy jednego segmentu. Agat II to dom nowoczesny i wygodny przeznaczony dla 4-5 osobowej rodziny. Strefa wejściowa do budynku przewiduje duży wiatrołap wyposażony w solidne szafy wnękowe z dostępem do pomieszczenia technicznego z piecem na paliwo stałe. Na parterze zaprojektowano jasny, praktyczny salon połączony z kuchnią , dodatkowy pokój,niewielką łazienkę oraz dużą spiżarnię a także garderobę wygospodarowaną w przestrzeni pod schodami. Na piętrze zaplanowano 3 sypialnie, garderobę oraz łazienkę. Projekt Agat II przeznaczony jest do zabudowy wolno stojącej ale również do zabudowy bliźniaczej i szeregowej. Może zostać zlokalizowany na małej i średniej działce.
